Building Summary

Data last updated on: 4/3/2026     Ownership current as of: 3/30/2026     Tax Year: 2026
REID 111804

PIN # 0831-25-8020

Location Address Property Description
1007 MORNING GLORY AVE GOLDEN BELT MFG CO/1007 MORNING GLORY AVE GOLDEN B PL:00028A-000016
   
Property Owner Owner's Mailing Address
ROSOFF, ELISABETH
1007 MORNING GLORY AVE
DURHAM NC 27701
Parcel
Buildings
Misc Improvements
Land
Deeds
Notes
Sales
Photos
Map
Building Location Address
1007 MORNING GLORY AVE
Building Description
RESFR-RES-FRM-OR-EQ
Card   of  1
Bldg Type RESIDENTIAL
Units 1
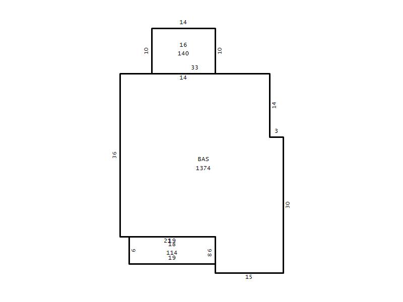
Living Area (SQFT) 1374
Number of Stories 1.00
Style RAN-RANCH
Foundation 04-P-FOOTING/CRWL-SP
Exterior 01-WOOD-PANEL
Const Type
Heating 05-PACKAGE-HEAT/COOL
Air Cond
Plumbing Baths (Full):   1
Baths (Half):   0
Extra Fixtures:   0
Total Plumbing Fixtures:   3 
Bedrooms 2
Main Body (SQFT) 1374
Year Built 1900
Additions 2
Effective Year 1900
Remodeled 0
Interior Adj.
Other Features
Building Total & Improvement Details

Grade C 100%
Percentage Complete 100
Total Adjusted Replacement Cost New $251,493
Physical Depreciation (% Bad) 0%
Depreciated Value $163,470
Economic Depreciation (% Bad) 0%
Functional Depreciation (% Bad) 0%
Total Depreciated Value $163,470
Market Area Factor 1.00
Building Value $163,470
Misc Improvements Value
Total Improvement Value $163,470

Assessed Land Value $143,750
   
Assessed Total Value $307,220



Addition Summary 
StoryTypeCodeArea
1.00 Frame Deck 16 140
1.00 Covered Porch 18 114
 
Other Improvements 
UnitsDescriptionItemCodeYear% BadValue
5x6 DIMENSIONS Shed Personal Property 2000 75
 


Building Sketch
Photograph
Building Sketch Building Photo
(Click sketch for bigger image)




Copyright © 2022 Durham County, North Carolina.