Building Summary

Data last updated on: 5/7/2026     Ownership current as of: 4/30/2026     Tax Year: 2026
REID 218487

PIN # 0728-53-4876

Location Address Property Description
1314 CATCH FLY LN MEADOWS AT SOUTHPOINT/PH: 01/LT#150 MODEL-ASTER PL:000195-000145
   
Property Owner Owner's Mailing Address
JAYARAMAN, MALINI MEENAKSHI
1314 CATCH FLY LN
DURHAM NC 27713
Parcel
Buildings
Misc Improvements
Land
Deeds
Notes
Sales
Photos
Map
Building Location Address
1314 CATCH FLY LN
Building Description
TINMF-TWNHS-INT-U-MF
Card   of  1
Bldg Type RESIDENTIAL
Units 1
Living Area (SQFT) 1862
Number of Stories 2.00
Style 208-TWN-RW-S-2ST/2CW
Foundation 03-CONTINOUS-SLAB
Exterior 09-HARD-B/CEMENTBRD
Const Type
Heating 05-PACKAGE-HEAT/COOL
Air Cond
Plumbing Baths (Full):   2
Baths (Half):   1
Extra Fixtures:   0
Total Plumbing Fixtures:   8 
Bedrooms 3
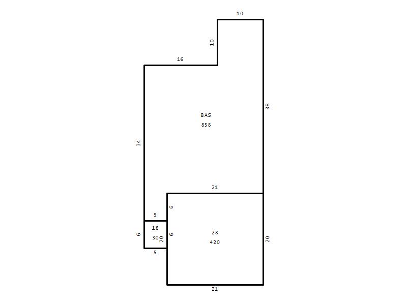
Main Body (SQFT) 858
Year Built 2016
Additions 4
Effective Year 2016
Remodeled 0
Interior Adj.
Other Features
Building Total & Improvement Details

Grade B-5 115%
Percentage Complete 100
Total Adjusted Replacement Cost New $371,314
Physical Depreciation (% Bad) 0%
Depreciated Value $356,461
Economic Depreciation (% Bad) 0%
Functional Depreciation (% Bad) 0%
Total Depreciated Value $356,461
Market Area Factor 1.00
Building Value $356,461
Misc Improvements Value
Total Improvement Value $356,461

Assessed Land Value $90,000
   
Assessed Total Value $446,461



Addition Summary 
StoryTypeCodeArea
1.00 Garage 28 420
1.00 Covered Porch 18 30
1.00 Res Mas 2Nd Flr MS02 758
1.00 Res Mas 2Nd Flr Ovr Grg MS02 246
 
Other Improvements 
 


Building Sketch
Photograph
Building Sketch Building Photo
(Click sketch for bigger image)




Copyright © 2022 Durham County, North Carolina.