Building Summary

Data last updated on: 4/2/2026     Ownership current as of: 3/30/2026     Tax Year: 2026
REID 219248

PIN # 0860-07-3558

Location Address Property Description
617 HIDDENBROOK DR SHERRON ROAD TRACT/PH:03/ LT#04 PL:000195-000177
   
Property Owner Owner's Mailing Address
RITTER, KYLE BENJAMIN;BATES, TAYLOR JORDAN
617 HIDDENBROOK DR
DURHAM NC 27703
Parcel
Buildings
Misc Improvements
Land
Deeds
Notes
Sales
Photos
Map
Building Location Address
617 HIDDENBROOK DR
Building Description
RESFR-RES-FRM-OR-EQ
Card   of  1
Bldg Type RESIDENTIAL
Units 1
Living Area (SQFT) 3036
Number of Stories 2.00
Style CON-CONVENTIONAL
Foundation 03-CONTINOUS-SLAB
Exterior 08-VINYL/ALUMINUM
Const Type
Heating 05-PACKAGE-HEAT/COOL
Air Cond
Plumbing Baths (Full):   2
Baths (Half):   1
Extra Fixtures:   0
Total Plumbing Fixtures:   8 
Bedrooms 4
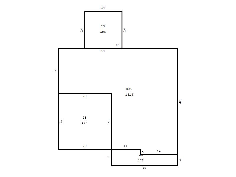
Main Body (SQFT) 1318
Year Built 2016
Additions 5
Effective Year 2016
Remodeled 0
Interior Adj.
Other Features
Building Total & Improvement Details

Grade B- 115%
Percentage Complete 100
Total Adjusted Replacement Cost New $509,709
Physical Depreciation (% Bad) 0%
Depreciated Value $463,835
Economic Depreciation (% Bad) 0%
Functional Depreciation (% Bad) 0%
Total Depreciated Value $463,835
Market Area Factor 1.00
Building Value $463,835
Misc Improvements Value $2,713
Total Improvement Value $466,548

Assessed Land Value $104,125
   
Assessed Total Value $570,673



Addition Summary 
StoryTypeCodeArea
1.00 Screen Porch 19 196
1.00 Garage 28 420
1.00 Covered Porch 18 122
1.00 Res Frame 2Nd Flr FR02 1318
1.00 Res Frm 2Nd Flr Over Garg FR02 400
 
Other Improvements 
UnitsDescriptionItemCodeYear% BadValue
10x14 DIMENSIONS Patio 2016 0 2713
 


Building Sketch
Photograph
Building Sketch Building Photo
(Click sketch for bigger image)




Copyright © 2022 Durham County, North Carolina.