Building Summary

Data last updated on: 4/3/2026     Ownership current as of: 3/30/2026     Tax Year: 2026
REID 219396

PIN # 0769-15-4938

Location Address Property Description
115 GADWALL LN DEL WEBB CAROLINA ARBORS/ PH:03A-04A/LT#1048 DW-5 PL:000195-000225
   
Property Owner Owner's Mailing Address
EMERSON, EDWARD JAMES;EMERSON, KATHLEEN
115 GADWALL LN
DURHAM NC 27703
Parcel
Buildings
Misc Improvements
Land
Deeds
Notes
Sales
Photos
Map
Building Location Address
115 GADWALL LN
Building Description
RESFR-RES-FRM-OR-EQ
Card   of  1
Bldg Type RESIDENTIAL
Units 1
Living Area (SQFT) 2712
Number of Stories 1.00
Style RAN-RANCH
Foundation 03-CONTINOUS-SLAB
Exterior 09-HARD-B/CEMENTBRD
Const Type
Heating 05-PACKAGE-HEAT/COOL
Air Cond
Plumbing Baths (Full):   3
Baths (Half):   0
Extra Fixtures:   0
Total Plumbing Fixtures:   9 
Bedrooms 3
Main Body (SQFT) 2712
Year Built 2016
Additions 4
Effective Year 2016
Remodeled 0
Interior Adj.
Other Features
Building Total & Improvement Details

Grade B+20 140%
Percentage Complete 100
Total Adjusted Replacement Cost New $598,990
Physical Depreciation (% Bad) 0%
Depreciated Value $575,030
Economic Depreciation (% Bad) 0%
Functional Depreciation (% Bad) 0%
Total Depreciated Value $575,030
Market Area Factor 1.00
Building Value $575,030
Misc Improvements Value
Total Improvement Value $575,030

Assessed Land Value $135,660
   
Assessed Total Value $710,690



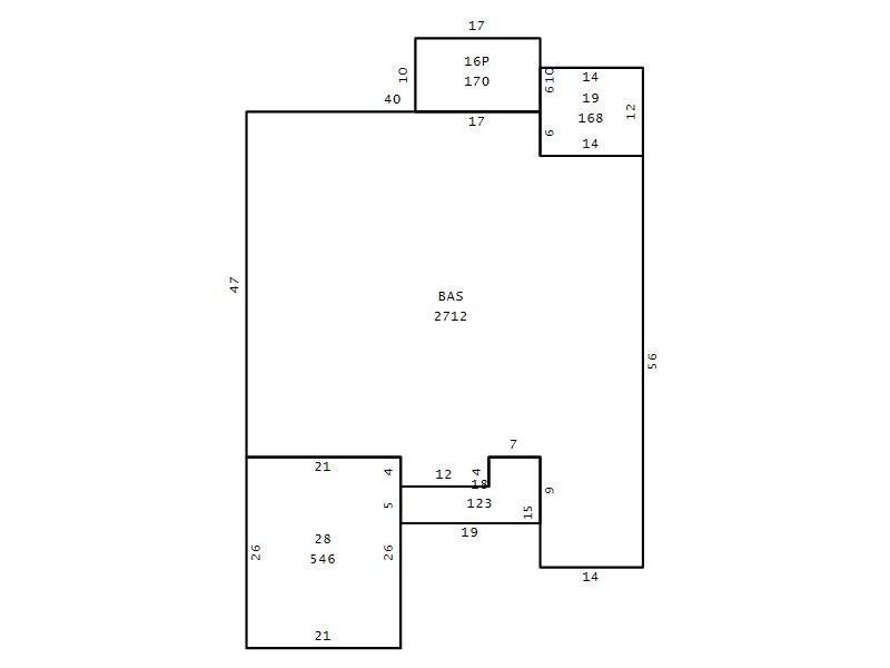
Addition Summary 
StoryTypeCodeArea
1.00 Patio 16P 170
1.00 Screen Porch 19 168
1.00 Garage 28 546
1.00 Covered Porch 18 123
 
Other Improvements 
 


Building Sketch
Photograph
Building Sketch Building Photo
(Click sketch for bigger image)




Copyright © 2022 Durham County, North Carolina.