Building Summary

Data last updated on: 4/2/2026     Ownership current as of: 3/30/2026     Tax Year: 2026
REID 219975

PIN # 0852-45-1914

Location Address Property Description
116 CANVASBACK DR CARDINAL OAKS/PH:03/LT#05 3 PL:000196-000027
   
Property Owner Owner's Mailing Address
ARRIVED NC SIGMA LLC
1 WEST MOUNTAIN ST STE 109
FAYETTEVILLE AR 72701
Parcel
Buildings
Misc Improvements
Land
Deeds
Notes
Sales
Photos
Map
Building Location Address
116 CANVASBACK DR
Building Description
RESFR-RES-FRM-OR-EQ
Card   of  1
Bldg Type RESIDENTIAL
Units 1
Living Area (SQFT) 2483
Number of Stories 2.00
Style CON-CONVENTIONAL
Foundation 03-CONTINOUS-SLAB
Exterior 08-VINYL/ALUMINUM
Const Type
Heating 05-PACKAGE-HEAT/COOL
Air Cond
Plumbing Baths (Full):   2
Baths (Half):   1
Extra Fixtures:   0
Total Plumbing Fixtures:   8 
Bedrooms 4
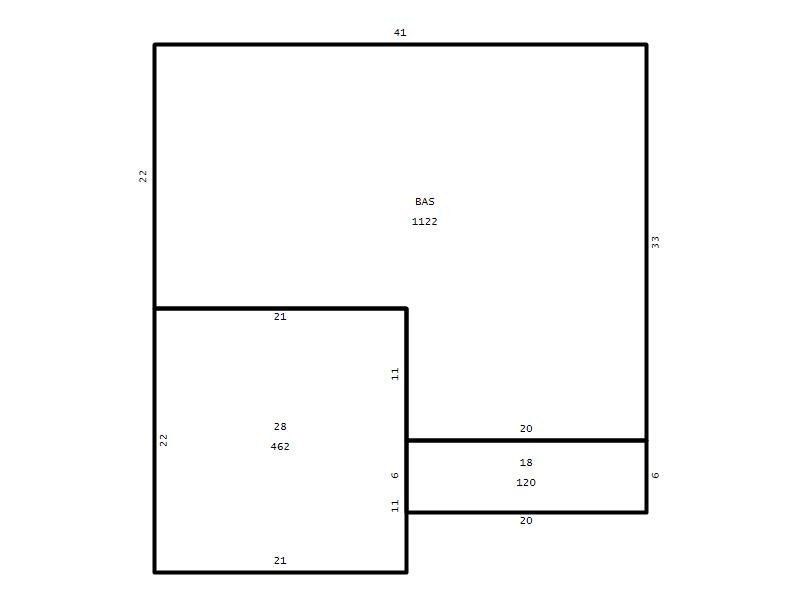
Main Body (SQFT) 1122
Year Built 2016
Additions 4
Effective Year 2016
Remodeled 0
Interior Adj.
Other Features
Building Total & Improvement Details

Grade C+ 110%
Percentage Complete 100
Total Adjusted Replacement Cost New $429,616
Physical Depreciation (% Bad) 0%
Depreciated Value $390,951
Economic Depreciation (% Bad) 0%
Functional Depreciation (% Bad) 0%
Total Depreciated Value $390,951
Market Area Factor 1.00
Building Value $390,951
Misc Improvements Value $1,938
Total Improvement Value $392,889

Assessed Land Value $70,000
   
Assessed Total Value $462,889



Addition Summary 
StoryTypeCodeArea
1.00 Covered Porch 18 120
1.00 Garage 28 462
1.00 Res Frame 2Nd Flr FR02 1130
1.00 Res Frm 2Nd Flr Over Garg FR02 231
 
Other Improvements 
UnitsDescriptionItemCodeYear% BadValue
10x10 DIMENSIONS Patio 2016 0 1938
 


Building Sketch
Photograph
Building Sketch Building Photo
(Click sketch for bigger image)




Copyright © 2022 Durham County, North Carolina.