Building Summary

Data last updated on: 4/2/2026     Ownership current as of: 3/30/2026     Tax Year: 2026
REID 220247

PIN # 0769-15-8756

Location Address Property Description
203 IBIS LN DEL WEBB CAROLINA ARBORS/ PH:04B/LT#1090 TAN-6 BD PL:000196-000070
   
Property Owner Owner's Mailing Address
LISA A NAJJAR TRUSTEE;DENNIS M NAJJAR TRUSTEE;NAJJAR LIVING TRUST
3312 ATLANTIC CIR
NAPLES FL 34119
Parcel
Buildings
Misc Improvements
Land
Deeds
Notes
Sales
Photos
Map
Building Location Address
203 IBIS LN
Building Description
RESFR-RES-FRM-OR-EQ
Card   of  1
Bldg Type RESIDENTIAL
Units 1
Living Area (SQFT) 3460
Number of Stories 2.00
Style CAP-CAPE-COD
Foundation 03-CONTINOUS-SLAB
Exterior 09-HARD-B/CEMENTBRD
Const Type
Heating 05-PACKAGE-HEAT/COOL
Air Cond
Plumbing Baths (Full):   4
Baths (Half):   0
Extra Fixtures:   0
Total Plumbing Fixtures:   12 
Bedrooms 4
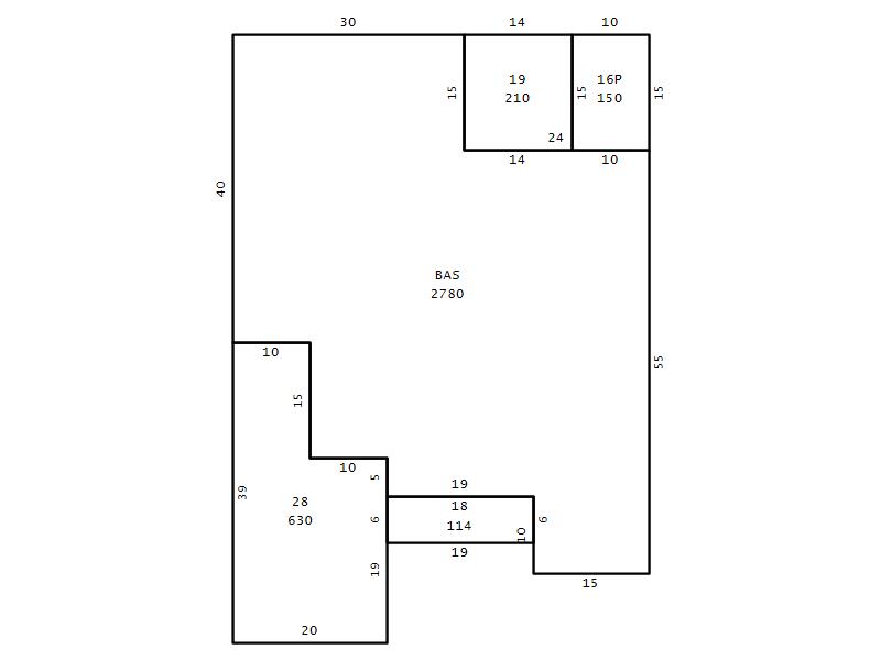
Main Body (SQFT) 2780
Year Built 2017
Additions 5
Effective Year 2017
Remodeled 0
Interior Adj.
Other Features
Building Total & Improvement Details

Grade B+20 140%
Percentage Complete 100
Total Adjusted Replacement Cost New $725,180
Physical Depreciation (% Bad) 0%
Depreciated Value $725,180
Economic Depreciation (% Bad) 0%
Functional Depreciation (% Bad) 0%
Total Depreciated Value $725,180
Market Area Factor 1.00
Building Value $725,180
Misc Improvements Value
Total Improvement Value $725,180

Assessed Land Value $135,660
   
Assessed Total Value $860,840



Addition Summary 
StoryTypeCodeArea
1.00 Patio 16P 150
1.00 Covered Porch 18 114
1.00 Screen Porch 19 210
1.00 Garage 28 630
1.00 Res Frame 2Nd Flr FR02 680
 
Other Improvements 
 


Building Sketch
Photograph
Building Sketch Building Photo
(Click sketch for bigger image)




Copyright © 2022 Durham County, North Carolina.