Building Summary

Data last updated on: 3/27/2026     Ownership current as of: 3/24/2026     Tax Year: 2026
REID 220500

PIN # 0728-43-2856

Location Address Property Description
1012 CATCH FLY LN MEADOWS AT SOUTHPOINT TWH MS/PH:02/LT#001 PL:000199-000344
   
Property Owner Owner's Mailing Address
HUPP, SUSAN R
1012 CATCH FLY LN
DURHAM NC 27713
Parcel
Buildings
Misc Improvements
Land
Deeds
Notes
Sales
Photos
Map
Building Location Address
1012 CATCH FLY LN
Building Description
TENFR-TWNHS-E-UN-FR
Card   of  1
Bldg Type RESIDENTIAL
Units 1
Living Area (SQFT) 3061
Number of Stories 2.00
Style TWN-TWNHS/ATTC-RW-TP
Foundation 03-CONTINOUS-SLAB
Exterior 09-HARD-B/CEMENTBRD
Const Type
Heating 05-PACKAGE-HEAT/COOL
Air Cond
Plumbing Baths (Full):   3
Baths (Half):   1
Extra Fixtures:   0
Total Plumbing Fixtures:   11 
Bedrooms 4
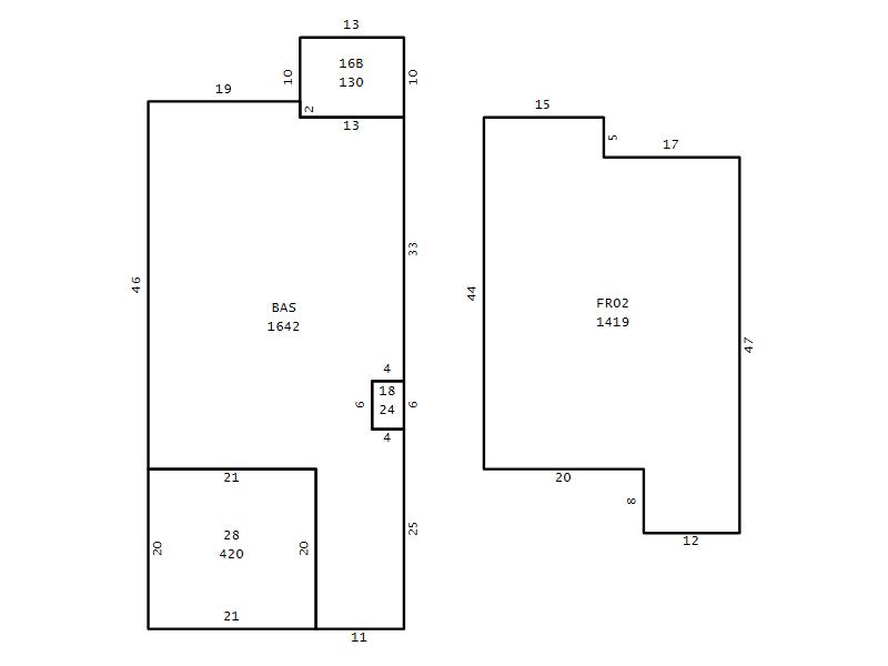
Main Body (SQFT) 1642
Year Built 2019
Additions 4
Effective Year 2019
Remodeled 0
Interior Adj.
Other Features
Building Total & Improvement Details

Grade B-5 115%
Percentage Complete 100
Total Adjusted Replacement Cost New $503,287
Physical Depreciation (% Bad) 0%
Depreciated Value $498,254
Economic Depreciation (% Bad) 0%
Functional Depreciation (% Bad) 0%
Total Depreciated Value $498,254
Market Area Factor 1.00
Building Value $498,254
Misc Improvements Value
Total Improvement Value $498,254

Assessed Land Value $90,000
   
Assessed Total Value $588,254



Addition Summary 
StoryTypeCodeArea
1.00 Concrete Slab 16B 130
1.00 Covered Porch 18 24
1.00 Garage 28 420
1.00 Res Frame 2Nd Flr FR02 1419
 
Other Improvements 
 


Building Sketch
Photograph
Building Sketch Photo is unavailable for this parcel.
(Click sketch for bigger image)




Copyright © 2022 Durham County, North Carolina.