Building Summary

Data last updated on: 4/2/2026     Ownership current as of: 3/30/2026     Tax Year: 2026
REID 220669

PIN # 0860-16-3917

Location Address Property Description
316 WELLWATER AVE SHERRON ROAD TRACT/PH:04/ LT#80 PL:000196-000232
   
Property Owner Owner's Mailing Address
POTTER, JESSEE
316 WELLWATER AVE
DURHAM NC 27703
Parcel
Buildings
Misc Improvements
Land
Deeds
Notes
Sales
Photos
Map
Building Location Address
316 WELLWATER AVE
Building Description
RESFR-RES-FRM-OR-EQ
Card   of  1
Bldg Type RESIDENTIAL
Units 1
Living Area (SQFT) 2851
Number of Stories 2.00
Style CON-CONVENTIONAL
Foundation 03-CONTINOUS-SLAB
Exterior 08-VINYL/ALUMINUM
Const Type
Heating 05-PACKAGE-HEAT/COOL
Air Cond
Plumbing Baths (Full):   2
Baths (Half):   1
Extra Fixtures:   0
Total Plumbing Fixtures:   8 
Bedrooms 4
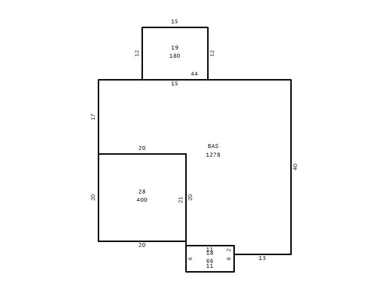
Main Body (SQFT) 1278
Year Built 2017
Additions 5
Effective Year 2017
Remodeled 0
Interior Adj.
Other Features
Building Total & Improvement Details

Grade B- 115%
Percentage Complete 100
Total Adjusted Replacement Cost New $487,304
Physical Depreciation (% Bad) 0%
Depreciated Value $448,320
Economic Depreciation (% Bad) 0%
Functional Depreciation (% Bad) 0%
Total Depreciated Value $448,320
Market Area Factor 1.00
Building Value $448,320
Misc Improvements Value
Total Improvement Value $448,320

Assessed Land Value $101,500
   
Assessed Total Value $549,820



Addition Summary 
StoryTypeCodeArea
1.00 Covered Porch 18 66
1.00 Screen Porch 19 180
1.00 Garage 28 400
1.00 Res Frame 2Nd Flr FR02 1173
1.00 Res Frm 2Nd Flr Over Garg FR02 400
 
Other Improvements 
 


Building Sketch
Photograph
Building Sketch Building Photo
(Click sketch for bigger image)




Copyright © 2022 Durham County, North Carolina.