Building Summary

Data last updated on: 4/2/2026     Ownership current as of: 3/30/2026     Tax Year: 2026
REID 112408

PIN # 0831-63-5043

Location Address Property Description
206 S GUTHRIE AVE PROP-WYATT W J/BLK:E/LT#1 0 EAST DURHAM/HD PL:000018-000542
   
Property Owner Owner's Mailing Address
LEWIS, NAIMA
206 S GUTHRIE AVE
DURHAM NC 27703
Parcel
Buildings
Misc Improvements
Land
Deeds
Notes
Sales
Photos
Map
Building Location Address
206 S GUTHRIE AVE
Building Description
RESFR-RES-FRM-OR-EQ
Card   of  1
Bldg Type RESIDENTIAL
Units 1
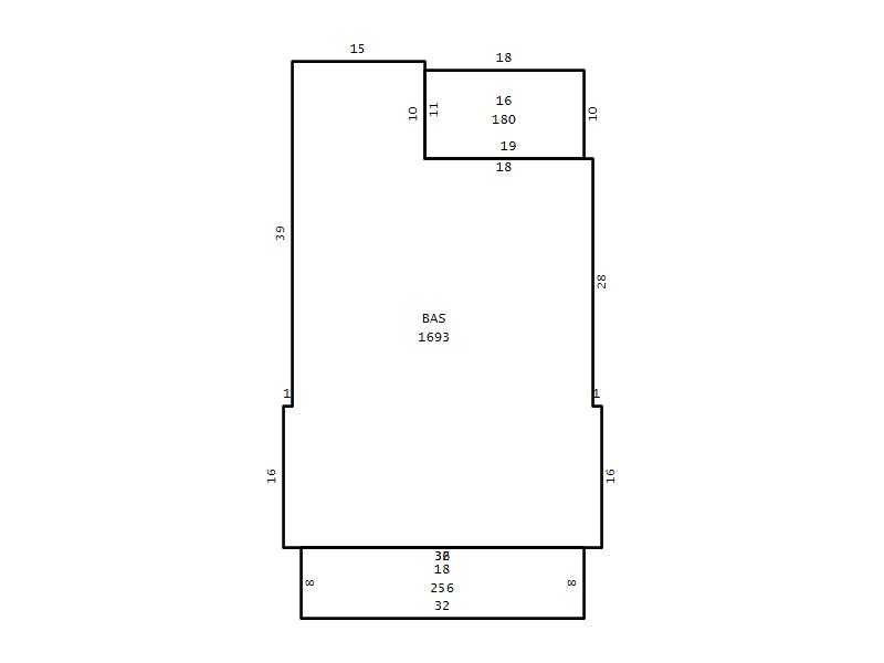
Living Area (SQFT) 1693
Number of Stories 1.00
Style RAN-RANCH
Foundation 04-P-FOOTING/CRWL-SP
Exterior 09-HARD-B/CEMENTBRD
Const Type
Heating 01-FLR/WALL-FURNACE
Air Cond
Plumbing Baths (Full):   2
Baths (Half):   0
Extra Fixtures:   0
Total Plumbing Fixtures:   6 
Bedrooms 3
Main Body (SQFT) 1693
Year Built 1910
Additions 2
Effective Year 1910
Remodeled 0
Interior Adj.
Other Features
Building Total & Improvement Details

Grade C+ 110%
Percentage Complete 100
Total Adjusted Replacement Cost New $312,937
Physical Depreciation (% Bad) 0%
Depreciated Value $234,703
Economic Depreciation (% Bad) 0%
Functional Depreciation (% Bad) 0%
Total Depreciated Value $234,703
Market Area Factor 1.00
Building Value $234,703
Misc Improvements Value $6,241
Total Improvement Value $240,944

Assessed Land Value $112,500
   
Assessed Total Value $353,444



Addition Summary 
StoryTypeCodeArea
1.00 Frame Deck 16 180
1.00 Covered Porch 18 256
 
Other Improvements 
UnitsDescriptionItemCodeYear% BadValue
468 SIZE Garage Frame 1955 75 6241
 


Building Sketch
Photograph
Building Sketch Building Photo
(Click sketch for bigger image)




Copyright © 2022 Durham County, North Carolina.