Building Summary

Data last updated on: 3/13/2026     Ownership current as of: 3/9/2026     Tax Year: 2026
REID 112440

PIN # 0831-53-5008

Location Address Property Description
1904 HART ST PROP-CLIFTON/LT#10 EAST DURHAM/HD PL:000010-000086
   
Property Owner Owner's Mailing Address
WESTERLUND, JOSEPH ROSS;WESTERLUND, WILLIAM JOHN
1904 HART ST
DURHAM NC 27703
Parcel
Buildings
Misc Improvements
Land
Deeds
Notes
Sales
Photos
Map
Building Location Address
1904 HART ST
Building Description
RESFR-RES-FRM-OR-EQ
Card   of  1
Bldg Type RESIDENTIAL
Units 1
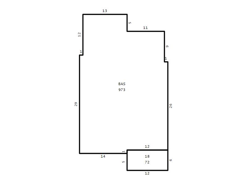
Living Area (SQFT) 973
Number of Stories 1.00
Style RAN-RANCH
Foundation 04-P-FOOTING/CRWL-SP
Exterior 01-WOOD-PANEL
Const Type
Heating 05-PACKAGE-HEAT/COOL
Air Cond
Plumbing Baths (Full):   2
Baths (Half):   0
Extra Fixtures:   0
Total Plumbing Fixtures:   6 
Bedrooms 2
Main Body (SQFT) 973
Year Built 1940
Additions 1
Effective Year 1940
Remodeled 0
Interior Adj.
Other Features
Building Total & Improvement Details

Grade C+20 120%
Percentage Complete 100
Total Adjusted Replacement Cost New $243,000
Physical Depreciation (% Bad) 0%
Depreciated Value $182,250
Economic Depreciation (% Bad) 0%
Functional Depreciation (% Bad) 0%
Total Depreciated Value $182,250
Market Area Factor 1.00
Building Value $182,250
Misc Improvements Value
Total Improvement Value $182,250

Assessed Land Value $102,600
   
Assessed Total Value $284,850



Addition Summary 
StoryTypeCodeArea
1.00 Covered Porch 18 72
 
Other Improvements 
 


Building Sketch
Photograph
Building Sketch Building Photo
(Click sketch for bigger image)




Copyright © 2022 Durham County, North Carolina.