Building Summary

Data last updated on: 4/2/2026     Ownership current as of: 3/30/2026     Tax Year: 2026
REID 222920

PIN # 0812-16-8480

Location Address Property Description
3 GALWAY GLENN LN GALWAY GLEN TWHMS/LT#002 GR PT PL:000198-000394
   
Property Owner Owner's Mailing Address
SMITH, KATHERINE L
1672R WASHINGTON STREET UNIT TH1
BOSTON MA 02118
Parcel
Buildings
Misc Improvements
Land
Deeds
Notes
Sales
Photos
Map
Building Location Address
3 GALWAY GLENN LN
Building Description
TINFR-TWNHS-INT-U-FR
Card   of  1
Bldg Type RESIDENTIAL
Units 1
Living Area (SQFT) 1881
Number of Stories 2.00
Style TWN-TWNHS/ATTC-RW-TP
Foundation 03-CONTINOUS-SLAB
Exterior 08-VINYL/ALUMINUM
Const Type
Heating 05-PACKAGE-HEAT/COOL
Air Cond
Plumbing Baths (Full):   2
Baths (Half):   1
Extra Fixtures:   0
Total Plumbing Fixtures:   8 
Bedrooms 2
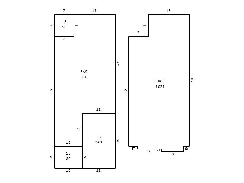
Main Body (SQFT) 856
Year Built 2018
Additions 4
Effective Year 2018
Remodeled 0
Interior Adj.
Other Features
Building Total & Improvement Details

Grade B+5 125%
Percentage Complete 100
Total Adjusted Replacement Cost New $400,124
Physical Depreciation (% Bad) 0%
Depreciated Value $392,122
Economic Depreciation (% Bad) 0%
Functional Depreciation (% Bad) 0%
Total Depreciated Value $392,122
Market Area Factor 1.00
Building Value $392,122
Misc Improvements Value
Total Improvement Value $392,122

Assessed Land Value $70,400
   
Assessed Total Value $462,522



Addition Summary 
StoryTypeCodeArea
1.00 Res Frame 2Nd Flr FR02 1025
1.00 Covered Porch 18 80
1.00 Garage 28 240
1.00 Covered Porch 18 56
 
Other Improvements 
 


Building Sketch
Photograph
Building Sketch Photo is unavailable for this parcel.
(Click sketch for bigger image)




Copyright © 2022 Durham County, North Carolina.