Building Summary

Data last updated on: 4/2/2026     Ownership current as of: 3/30/2026     Tax Year: 2026
REID 222947

PIN # 0812-16-0490

Location Address Property Description
307 LIONEL ST GALWAY GLEN TWHMS/LT#029 PL:000201-000361
   
Property Owner Owner's Mailing Address
SY-LAUGHNER, KAREN GRACE;LAUGHNER, MICHAEL PAUL
307 LIONEL ST
DURHAM NC 27705
Parcel
Buildings
Misc Improvements
Land
Deeds
Notes
Sales
Photos
Map
Building Location Address
307 LIONEL ST
Building Description
TINFR-TWNHS-INT-U-FR
Card   of  1
Bldg Type RESIDENTIAL
Units 1
Living Area (SQFT) 1837
Number of Stories 2.00
Style TWN-TWNHS/ATTC-RW-TP
Foundation 03-CONTINOUS-SLAB
Exterior 09-HARD-B/CEMENTBRD
Const Type
Heating 05-PACKAGE-HEAT/COOL
Air Cond
Plumbing Baths (Full):   2
Baths (Half):   1
Extra Fixtures:   0
Total Plumbing Fixtures:   8 
Bedrooms 3
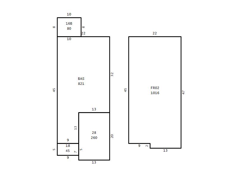
Main Body (SQFT) 821
Year Built 2019
Additions 4
Effective Year 2019
Remodeled 0
Interior Adj.
Other Features
Building Total & Improvement Details

Grade B+5 125%
Percentage Complete 100
Total Adjusted Replacement Cost New $390,230
Physical Depreciation (% Bad) 0%
Depreciated Value $386,328
Economic Depreciation (% Bad) 0%
Functional Depreciation (% Bad) 0%
Total Depreciated Value $386,328
Market Area Factor 1.00
Building Value $386,328
Misc Improvements Value
Total Improvement Value $386,328

Assessed Land Value $70,400
   
Assessed Total Value $456,728



Addition Summary 
StoryTypeCodeArea
1.00 Res Frame 2Nd Flr FR02 1016
1.00 Concrete Slab 16B 80
1.00 Covered Porch 18 45
1.00 Garage 28 260
 
Other Improvements 
 


Building Sketch
Photograph
Building Sketch Photo is unavailable for this parcel.
(Click sketch for bigger image)




Copyright © 2022 Durham County, North Carolina.