Building Summary

Data last updated on: 4/2/2026     Ownership current as of: 3/30/2026     Tax Year: 2026
REID 223006

PIN # 0812-26-0691

Location Address Property Description
16 EZEKIEL ST GALWAY GLEN TWHMS/LT#088 PL:000200-000309
   
Property Owner Owner's Mailing Address
XU, JINGLI
10120 KENDALL LN
STREETSBORO OH 44241
Parcel
Buildings
Misc Improvements
Land
Deeds
Notes
Sales
Photos
Map
Building Location Address
16 EZEKIEL ST
Building Description
TINFR-TWNHS-INT-U-FR
Card   of  1
Bldg Type RESIDENTIAL
Units 1
Living Area (SQFT) 1706
Number of Stories 2.00
Style TWN-TWNHS/ATTC-RW-TP
Foundation 03-CONTINOUS-SLAB
Exterior 09-HARD-B/CEMENTBRD
Const Type
Heating 05-PACKAGE-HEAT/COOL
Air Cond
Plumbing Baths (Full):   2
Baths (Half):   1
Extra Fixtures:   0
Total Plumbing Fixtures:   8 
Bedrooms 3
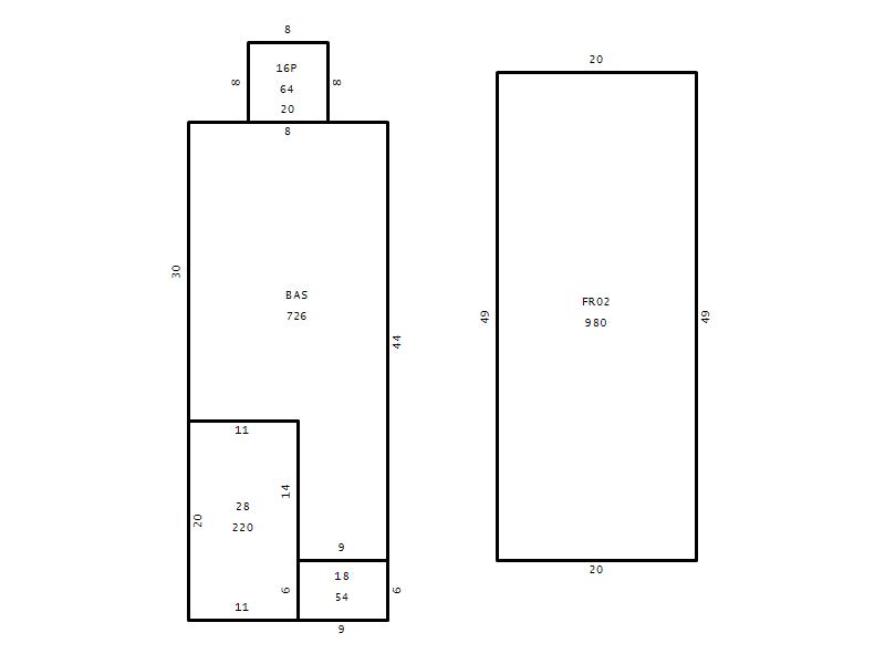
Main Body (SQFT) 726
Year Built 2019
Additions 4
Effective Year 2019
Remodeled 0
Interior Adj.
Other Features
Building Total & Improvement Details

Grade B+5 125%
Percentage Complete 100
Total Adjusted Replacement Cost New $362,497
Physical Depreciation (% Bad) 0%
Depreciated Value $358,872
Economic Depreciation (% Bad) 0%
Functional Depreciation (% Bad) 0%
Total Depreciated Value $358,872
Market Area Factor 1.00
Building Value $358,872
Misc Improvements Value
Total Improvement Value $358,872

Assessed Land Value $70,400
   
Assessed Total Value $429,272



Addition Summary 
StoryTypeCodeArea
1.00 Res Frame 2Nd Flr FR02 980
1.00 Patio 16P 64
1.00 Covered Porch 18 54
1.00 Garage 28 220
 
Other Improvements 
 


Building Sketch
Photograph
Building Sketch Photo is unavailable for this parcel.
(Click sketch for bigger image)




Copyright © 2022 Durham County, North Carolina.