Building Summary

Data last updated on: 4/2/2026     Ownership current as of: 3/30/2026     Tax Year: 2026
REID 223011

PIN # 0812-26-0459

Location Address Property Description
4 EZEKIEL ST GALWAY GLEN TWHMS/LT#093 PL:000200-000309
   
Property Owner Owner's Mailing Address
CBPIC NC OWNER I LLC
27452 CALLE ARROYO
SAN JUAN CAISTRANO CA 92675
Parcel
Buildings
Misc Improvements
Land
Deeds
Notes
Sales
Photos
Map
Building Location Address
4 EZEKIEL ST
Building Description
TINFR-TWNHS-INT-U-FR
Card   of  1
Bldg Type RESIDENTIAL
Units 1
Living Area (SQFT) 1706
Number of Stories 2.00
Style TWN-TWNHS/ATTC-RW-TP
Foundation 03-CONTINOUS-SLAB
Exterior 09-HARD-B/CEMENTBRD
Const Type
Heating 05-PACKAGE-HEAT/COOL
Air Cond
Plumbing Baths (Full):   2
Baths (Half):   1
Extra Fixtures:   0
Total Plumbing Fixtures:   8 
Bedrooms 3
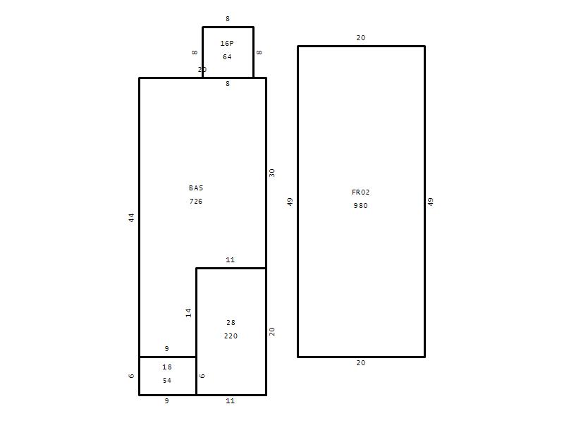
Main Body (SQFT) 726
Year Built 2020
Additions 4
Effective Year 2020
Remodeled 0
Interior Adj.
Other Features
Building Total & Improvement Details

Grade B+5 125%
Percentage Complete 100
Total Adjusted Replacement Cost New $362,497
Physical Depreciation (% Bad) 0%
Depreciated Value $362,497
Economic Depreciation (% Bad) 0%
Functional Depreciation (% Bad) 0%
Total Depreciated Value $362,497
Market Area Factor 1.00
Building Value $362,497
Misc Improvements Value
Total Improvement Value $362,497

Assessed Land Value $70,400
   
Assessed Total Value $432,897



Addition Summary 
StoryTypeCodeArea
1.00 Res Frame 2Nd Flr FR02 980
1.00 Patio 16P 64
1.00 Covered Porch 18 54
1.00 Garage 28 220
 
Other Improvements 
 


Building Sketch
Photograph
Building Sketch Photo is unavailable for this parcel.
(Click sketch for bigger image)




Copyright © 2022 Durham County, North Carolina.