Building Summary

Data last updated on: 4/2/2026     Ownership current as of: 3/30/2026     Tax Year: 2026
REID 223047

PIN # 0850-97-7390

Location Address Property Description
124 GREEN GABLES WAY SHERRON FARMS/PH:08/LT#19 5 PL:000198-000187
   
Property Owner Owner's Mailing Address
LAWRENCE, WILLIE III;LAWRENCE, CHRISTINA SONDRINI
124 GREEN GABLES WAY
DURHAM NC 27703
Parcel
Buildings
Misc Improvements
Land
Deeds
Notes
Sales
Photos
Map
Building Location Address
124 GREEN GABLES WAY
Building Description
RESFR-RES-FRM-OR-EQ
Card   of  1
Bldg Type RESIDENTIAL
Units 1
Living Area (SQFT) 2840
Number of Stories 2.00
Style CON-CONVENTIONAL
Foundation 03-CONTINOUS-SLAB
Exterior 08-VINYL/ALUMINUM
Const Type
Heating 05-PACKAGE-HEAT/COOL
Air Cond
Plumbing Baths (Full):   2
Baths (Half):   1
Extra Fixtures:   0
Total Plumbing Fixtures:   8 
Bedrooms 4
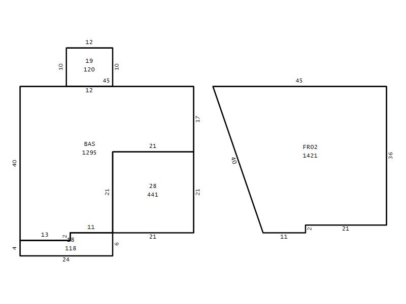
Main Body (SQFT) 1295
Year Built 2019
Additions 4
Effective Year 2019
Remodeled 0
Interior Adj.
Other Features
Building Total & Improvement Details

Grade B- 115%
Percentage Complete 100
Total Adjusted Replacement Cost New $488,024
Physical Depreciation (% Bad) 0%
Depreciated Value $458,743
Economic Depreciation (% Bad) 0%
Functional Depreciation (% Bad) 0%
Total Depreciated Value $458,743
Market Area Factor 1.00
Building Value $458,743
Misc Improvements Value
Total Improvement Value $458,743

Assessed Land Value $111,125
   
Assessed Total Value $569,868



Addition Summary 
StoryTypeCodeArea
1.00 Res Frame 2Nd Flr FR02 1545
1.00 Covered Porch 18 118
1.00 Screen Porch 19 120
1.00 Garage 28 441
 
Other Improvements 
 


Building Sketch
Photograph
Building Sketch Photo is unavailable for this parcel.
(Click sketch for bigger image)




Copyright © 2022 Durham County, North Carolina.