Building Summary

Data last updated on: 4/2/2026     Ownership current as of: 3/30/2026     Tax Year: 2026
REID 223056

PIN # 0850-97-6508

Location Address Property Description
701 STARRY SKY DR SHERRON FARMS/PH:08/LT#21 1 PL:000198-000187
   
Property Owner Owner's Mailing Address
SN NORTH CAROLINA II LLC
PO BOX 4900
SCOTTSDALE AZ 85261
Parcel
Buildings
Misc Improvements
Land
Deeds
Notes
Sales
Photos
Map
Building Location Address
701 STARRY SKY DR
Building Description
RESFR-RES-FRM-OR-EQ
Card   of  1
Bldg Type RESIDENTIAL
Units 1
Living Area (SQFT) 2246
Number of Stories 2.00
Style CON-CONVENTIONAL
Foundation 03-CONTINOUS-SLAB
Exterior 08-VINYL/ALUMINUM
Const Type
Heating 05-PACKAGE-HEAT/COOL
Air Cond
Plumbing Baths (Full):   2
Baths (Half):   1
Extra Fixtures:   0
Total Plumbing Fixtures:   8 
Bedrooms 4
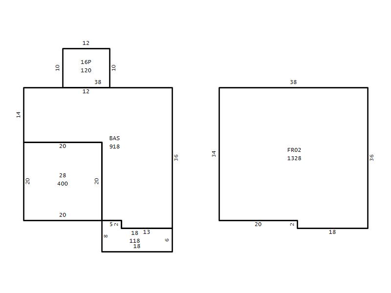
Main Body (SQFT) 918
Year Built 2019
Additions 4
Effective Year 2019
Remodeled 0
Interior Adj.
Other Features
Building Total & Improvement Details

Grade B-10 110%
Percentage Complete 100
Total Adjusted Replacement Cost New $404,171
Physical Depreciation (% Bad) 0%
Depreciated Value $379,921
Economic Depreciation (% Bad) 0%
Functional Depreciation (% Bad) 0%
Total Depreciated Value $379,921
Market Area Factor 1.00
Building Value $379,921
Misc Improvements Value
Total Improvement Value $379,921

Assessed Land Value $98,875
   
Assessed Total Value $478,796



Addition Summary 
StoryTypeCodeArea
1.00 Res Frame 2Nd Flr FR02 1328
1.00 Patio 16P 120
1.00 Covered Porch 18 118
1.00 Garage 28 400
 
Other Improvements 
 


Building Sketch
Photograph
Building Sketch Building Photo
(Click sketch for bigger image)




Copyright © 2022 Durham County, North Carolina.