Building Summary

Data last updated on: 4/2/2026     Ownership current as of: 3/30/2026     Tax Year: 2026
REID 226290

PIN # 0812-98-9344

Location Address Property Description
2551 DRAKE AVE PROP-KNOWLES BEN L/LT#36B PL:000201-000364
   
Property Owner Owner's Mailing Address
STONEKING, SARAH;MARTIN, WILLIAM A
3755 SW DURHAM DR APT 101
DURHAM NC 27707
Parcel
Buildings
Misc Improvements
Land
Deeds
Notes
Sales
Photos
Map
Building Location Address
2551 DRAKE AVE
Building Description
RESFR-RES-FRM-OR-EQ
Card   of  1
Bldg Type RESIDENTIAL
Units 1
Living Area (SQFT) 2192
Number of Stories 2.00
Style CON-CONVENTIONAL
Foundation 04-P-FOOTING/CRWL-SP
Exterior 09-HARD-B/CEMENTBRD
Const Type
Heating 05-PACKAGE-HEAT/COOL
Air Cond
Plumbing Baths (Full):   3
Baths (Half):   1
Extra Fixtures:   0
Total Plumbing Fixtures:   11 
Bedrooms 4
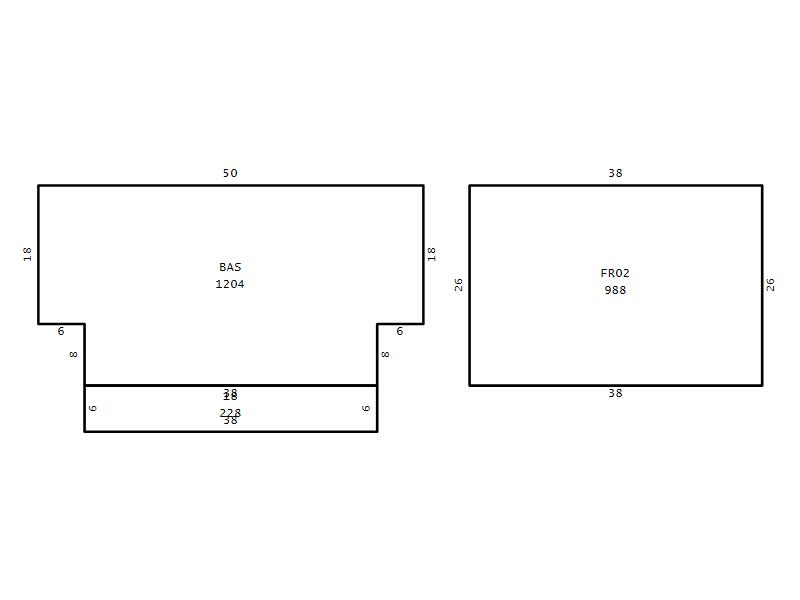
Main Body (SQFT) 1204
Year Built 2020
Additions 2
Effective Year 2020
Remodeled 0
Interior Adj.
Other Features
Building Total & Improvement Details

Grade A-10 155%
Percentage Complete 100
Total Adjusted Replacement Cost New $556,844
Physical Depreciation (% Bad) 0%
Depreciated Value $556,844
Economic Depreciation (% Bad) 0%
Functional Depreciation (% Bad) 0%
Total Depreciated Value $556,844
Market Area Factor 1.00
Building Value $556,844
Misc Improvements Value
Total Improvement Value $556,844

Assessed Land Value $167,750
   
Assessed Total Value $724,594



Addition Summary 
StoryTypeCodeArea
1.00 Res Frame 2Nd Flr FR02 988
1.00 Covered Porch 18 228
 
Other Improvements 
 


Building Sketch
Photograph
Building Sketch Building Photo
(Click sketch for bigger image)




Copyright © 2022 Durham County, North Carolina.