Building Summary

Data last updated on: 4/2/2026     Ownership current as of: 3/30/2026     Tax Year: 2026
REID 113100

PIN # 0831-67-7901

Location Address Property Description
1111 ALMA ST EASTERN HEIGHTS/BLK:14/LT #09-10-11-12 PL:00003A-000046
   
Property Owner Owner's Mailing Address
SARATHY LLC
3434-135 KILDAIRE FARM 183
CARY NC 27518
Parcel
Buildings
Misc Improvements
Land
Deeds
Notes
Sales
Photos
Map
Building Location Address
1111 ALMA ST
Card   of  1        Section   of  1
Building Details

Building Name APARTMENT GARDEN WOOD FR
Primary Occupancy Type COMMERCIAL
Primary Occupancy 01W-APTT-GARDEN-W-FR
Primary Class H1W
Primary Quality C+5
Year Built 1987
Effective Year 2012
Physical Depreciation (Rating) CEW-CDU PERCENTAGE
Physical Depreciation (% Bad) 8.00%
Economic Depreciation (% Bad) 0%
Functional Depreciation (% Bad) 0%
Gross Leasable Area (SQFT) 3000
Remodeled Year
Total Stories

Section Details

Occupancy Type COMMERCIAL


Class H1W
Depreciation 8%
Depreciation CEW-CDU PERCENTAGE
Heat 13-HOT-AIR-HEAT-COM
Occupancy 01W-APTT-GARDEN-W-FR
Quality C+5
Exterior Walls N/A-EXT-WALL
Building Total & Improvement Details

Total Adjusted Replacement Cost New $557,952
Physical Depreciation (% Bad) 8.00%
Depreciated Value $513,316
Economic Depreciation (% Bad) 0%
Functional Depreciation (% Bad) 0%
Total Depreciated Value $513,316
Market Area Factor 1.00
Building Value $513,316
Misc Improvements Value $14,000
Total Improvement Value $527,316

Assessed Land Value $140,000
   
Assessed Total Value $667,316


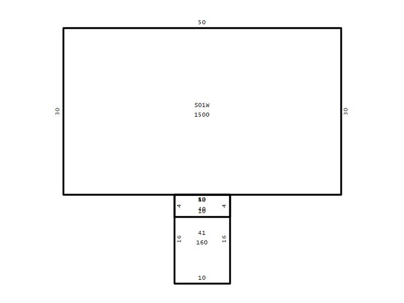
Addition Summary 
StoryTypeCodeArea
1.00 Canopy Commercial 41 160
1.00 Balcony Commercial 42 40
 
Other Improvements 
UnitsDescriptionItemCodeYear% BadValue
3000 SIZE Concrete Paving 1987 75 4500
2000 SIZE Fence, Chain 6' 1987 75 9500
 


Building Sketch
Photograph
Building Sketch Building Photo
(Click sketch for bigger image)




Copyright © 2022 Durham County, North Carolina.