Building Summary

Data last updated on: 3/13/2026     Ownership current as of: 3/9/2026     Tax Year: 2026
REID 230424

PIN # 0832-78-6467

Location Address Property Description
2407 MIRIAM CIR PROP-DURHAM BUILDING COMPANY LLC/LT#2C PL:208-119
   
Property Owner Owner's Mailing Address
DESAUTELS, FRANCOIS LAMOND;TREJO-CONTRERAS, BRYAN
2407 MIRIAM CIR
DURHAM NC 27704
Parcel
Buildings
Misc Improvements
Land
Deeds
Notes
Sales
Photos
Map
Building Location Address
2407 MIRIAM CIR
Building Description
RESFR-RES-FRM-OR-EQ
Card   of  1
Bldg Type RESIDENTIAL
Units 1
Living Area (SQFT) 1826
Number of Stories 2.00
Style CON-CONVENTIONAL
Foundation 04-P-FOOTING/CRWL-SP
Exterior 09-HARD-B/CEMENTBRD
Const Type
Heating 05-PACKAGE-HEAT/COOL
Air Cond
Plumbing Baths (Full):   3
Baths (Half):   0
Extra Fixtures:   0
Total Plumbing Fixtures:   9 
Bedrooms 4
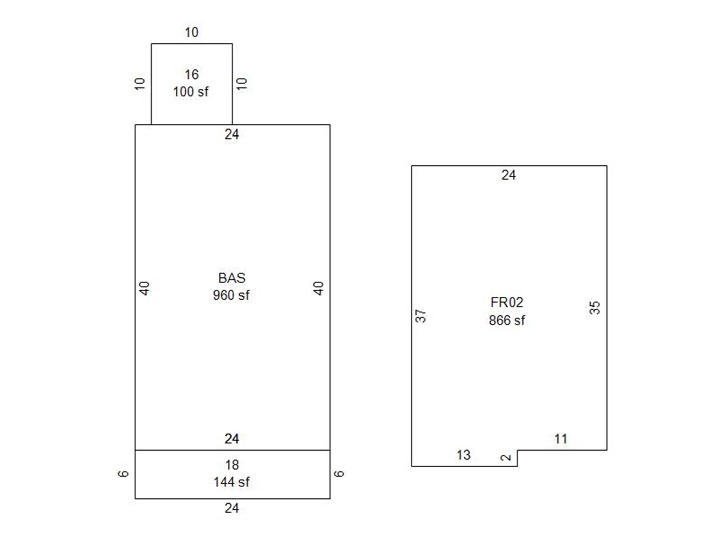
Main Body (SQFT) 960
Year Built 2022
Additions 3
Effective Year 2022
Remodeled 0
Interior Adj.
Other Features
Building Total & Improvement Details

Grade C- 95%
Percentage Complete 100
Total Adjusted Replacement Cost New $298,622
Physical Depreciation (% Bad) 0%
Depreciated Value $298,622
Economic Depreciation (% Bad) 0%
Functional Depreciation (% Bad) 0%
Total Depreciated Value $298,622
Market Area Factor 1.00
Building Value $298,622
Misc Improvements Value
Total Improvement Value $298,622

Assessed Land Value $75,000
   
Assessed Total Value $373,622



Addition Summary 
StoryTypeCodeArea
1.00 Frame Deck 16 100
1.00 Covered Porch 18 144
1.00 Res Frame 2Nd Flr FR02 866
 
Other Improvements 
 


Building Sketch
Photograph
Building Sketch Building Photo
(Click sketch for bigger image)




Copyright © 2022 Durham County, North Carolina.