Building Summary

Data last updated on: 1/13/2026     Ownership current as of: 12/23/2025     Tax Year: 2026
REID 113299

PIN # 0831-69-1604

Location Address Property Description
1604 FAY ST ALBRIGHT HEIGHTS/LT#10-11 PL:000007-000185
   
Property Owner Owner's Mailing Address
SMALL, DANIEL E;SMALL, VICTORIA
604 SEA HAWK DR SW
SUNSET BEACH NC 28468
Parcel
Buildings
Misc Improvements
Land
Deeds
Notes
Sales
Photos
Map
Building Location Address
1604 FAY ST
Building Description
MULFR-BLT-2/3-MLT-FR
Card   of  1
Bldg Type RESIDENTIAL
Units 1
Living Area (SQFT) 1110
Number of Stories 1.00
Style SEM-S-DTCH-VERT-SPLT
Foundation 04-P-FOOTING/CRWL-SP
Exterior 06-CONCRETE-BLOCK
Const Type
Heating 03-FORCED-HOT-AIR
Air Cond
Plumbing Baths (Full):   2
Baths (Half):   1
Extra Fixtures:   0
Total Plumbing Fixtures:   8 
Bedrooms 2
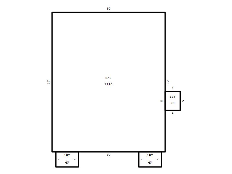
Main Body (SQFT) 1110
Year Built 1940
Additions 3
Effective Year 1940
Remodeled 0
Interior Adj.
Other Features
Building Total & Improvement Details

Grade C+5 105%
Percentage Complete 100
Total Adjusted Replacement Cost New $217,470
Physical Depreciation (% Bad) 0%
Depreciated Value $119,608
Economic Depreciation (% Bad) 0%
Functional Depreciation (% Bad) 0%
Total Depreciated Value $119,608
Market Area Factor 1.00
Building Value $119,608
Misc Improvements Value
Total Improvement Value $119,608

Assessed Land Value $99,000
   
Assessed Total Value $218,608



Addition Summary 
StoryTypeCodeArea
1.00 Terrace/Raised Patio 16T 20
1.00 Terrace/Raised Patio 16T 24
1.00 Terrace/Raised Patio 16T 24
 
Other Improvements 
 


Building Sketch
Photograph
Building Sketch Building Photo
(Click sketch for bigger image)




Copyright © 2022 Durham County, North Carolina.