Building Summary

Data last updated on: 4/2/2026     Ownership current as of: 3/30/2026     Tax Year: 2026
REID 232567

PIN # 0851-51-0881

Location Address Property Description
4017 WAKE FOREST HWY PROP-FLETCHER-TURNER JOHN W/LT#02 PT PL:000006-000083
   
Property Owner Owner's Mailing Address
AUNG, MAY THANDAR
10870 N STELLING RD APT 48D
CUPERTINO CA 95014
Parcel
Buildings
Misc Improvements
Land
Deeds
Notes
Sales
Photos
Map
Building Location Address
4017 WAKE FOREST HWY
Building Description
RESFR-RES-FRM-OR-EQ
Card   of  1
Bldg Type RESIDENTIAL
Units 1
Living Area (SQFT) 1944
Number of Stories 2.00
Style CON-CONVENTIONAL
Foundation 04-P-FOOTING/CRWL-SP
Exterior 08-VINYL/ALUMINUM
Const Type
Heating 05-PACKAGE-HEAT/COOL
Air Cond
Plumbing Baths (Full):   1
Baths (Half):   1
Extra Fixtures:   0
Total Plumbing Fixtures:   5 
Bedrooms 3
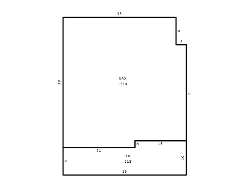
Main Body (SQFT) 1314
Year Built 1933
Additions 2
Effective Year 1933
Remodeled 0
Interior Adj.
Other Features
Building Total & Improvement Details

Grade C 100%
Percentage Complete 100
Total Adjusted Replacement Cost New $337,856
Physical Depreciation (% Bad) 0%
Depreciated Value $219,606
Economic Depreciation (% Bad) 0%
Functional Depreciation (% Bad) 0%
Total Depreciated Value $219,606
Market Area Factor 1.00
Building Value $219,606
Misc Improvements Value $3,105
Total Improvement Value $222,711

Assessed Land Value $183,512
   
Assessed Total Value $406,223



Addition Summary 
StoryTypeCodeArea
1.00 Covered Porch 18 318
1.00 Res Frame 2Nd Flr FR02 630
 
Other Improvements 
UnitsDescriptionItemCodeYear% BadValue
18x10 DIMENSIONS Lean To 1950 75 190
252 SIZE Storage Building 1950 75 1540
225 SIZE Storage Building 1950 75 1375
 


Building Sketch
Photograph
Building Sketch Building Photo
(Click sketch for bigger image)




Copyright © 2022 Durham County, North Carolina.