Building Summary

Data last updated on: 4/2/2026     Ownership current as of: 3/30/2026     Tax Year: 2026
REID 232577

PIN # 0851-33-7048

Location Address Property Description
3805 VALLEYDALE DR PROP-FERRELL GEORGE W/LT# 03 PL:000041-000057
   
Property Owner Owner's Mailing Address
FRANCO, JOSE;FRANCO, JENNA LEIGH
3805 VALLEYDALE DR
DURHAM NC 27703
Parcel
Buildings
Misc Improvements
Land
Deeds
Notes
Sales
Photos
Map
Building Location Address
3805 VALLEYDALE DR
Building Description
RESFR-RES-FRM-OR-EQ
Card   of  1
Bldg Type RESIDENTIAL
Units 1
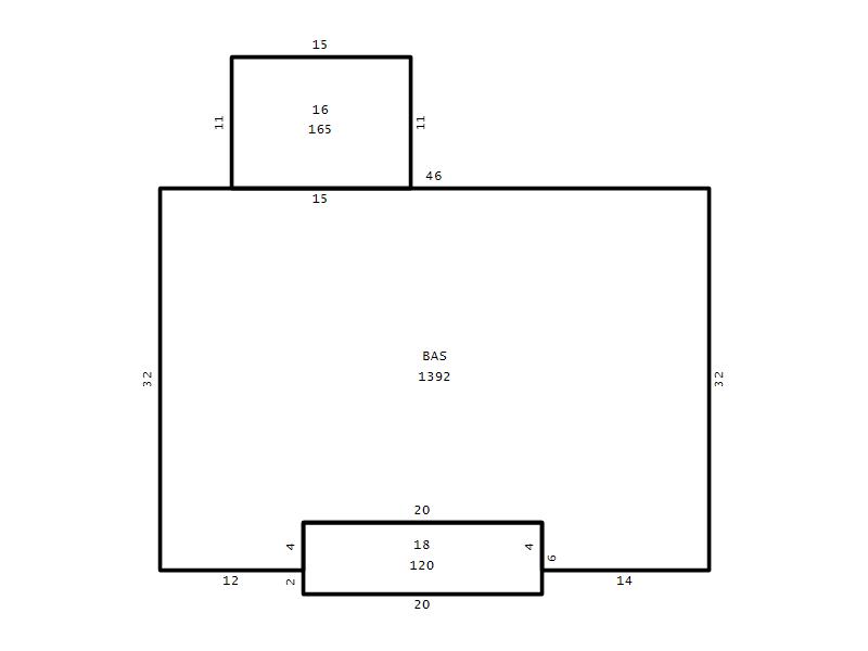
Living Area (SQFT) 1392
Number of Stories 1.00
Style RAN-RANCH
Foundation 04-P-FOOTING/CRWL-SP
Exterior 08-VINYL/ALUMINUM
Const Type
Heating 05-PACKAGE-HEAT/COOL
Air Cond
Plumbing Baths (Full):   2
Baths (Half):   0
Extra Fixtures:   0
Total Plumbing Fixtures:   6 
Bedrooms 3
Main Body (SQFT) 1392
Year Built 1962
Additions 3
Effective Year 1962
Remodeled 0
Interior Adj.
Other Features
Building Total & Improvement Details

Grade C+15 115%
Percentage Complete 100
Total Adjusted Replacement Cost New $306,705
Physical Depreciation (% Bad) 0%
Depreciated Value $171,755
Economic Depreciation (% Bad) 0%
Functional Depreciation (% Bad) 0%
Total Depreciated Value $171,755
Market Area Factor 1.00
Building Value $171,755
Misc Improvements Value $1,792
Total Improvement Value $173,547

Assessed Land Value $140,650
   
Assessed Total Value $314,197



Addition Summary 
StoryTypeCodeArea
1.00 Frame Deck 16 165
1.00 Covered Porch 18 120
1.00 Unfinished Basement 10 448
 
Other Improvements 
UnitsDescriptionItemCodeYear% BadValue
18x20 DIMENSIONS Prefab Metal Car Shed 1962 50 1206
12x22 DIMENSIONS Shed (Open Pole) 1962 75 586
 


Building Sketch
Photograph
Building Sketch Building Photo
(Click sketch for bigger image)




Copyright © 2022 Durham County, North Carolina.