Building Summary

Data last updated on: 4/2/2026     Ownership current as of: 3/30/2026     Tax Year: 2026
REID 235281

PIN # 0822-18-6686

Location Address Property Description
2210 B EDWIN AVE PROP-WARREN PARK/LT#10 PL:00006A-000034
   
Property Owner Owner's Mailing Address
JOHN S NEWMAN TRUSTEE;THE NEWMAN FAMILY TRUST
2210 B EDWIN AVE
DURHAM NC 27705

Value subject to change, property assessment under review

Parcel
Buildings
Misc Improvements
Land
Deeds
Notes
Sales
Photos
Map
Building Location Address
2210 EDWIN AVE
Building Description
RESFR-RES-FRM-OR-EQ
Card   of  1
Bldg Type RESIDENTIAL
Units 1
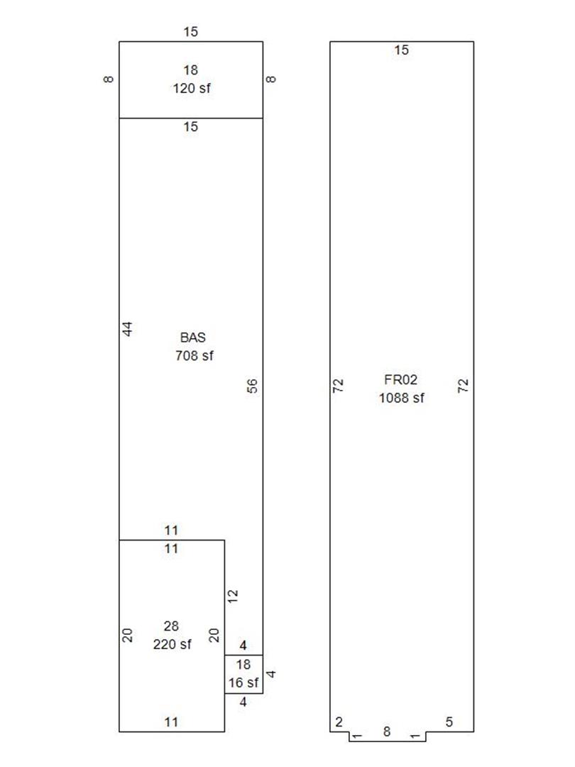
Living Area (SQFT) 1796
Number of Stories 2.00
Style CON-CONVENTIONAL
Foundation 04-P-FOOTING/CRWL-SP
Exterior 09-HARD-B/CEMENTBRD
Const Type
Heating 06-HEAT-PUMP
Air Cond
Plumbing Baths (Full):   2
Baths (Half):   1
Extra Fixtures:   0
Total Plumbing Fixtures:   8 
Bedrooms 3
Main Body (SQFT) 708
Year Built 2024
Additions 4
Effective Year 2024
Remodeled 0
Interior Adj.
Other Features
Building Total & Improvement Details

Grade B+20 140%
Percentage Complete 100
Total Adjusted Replacement Cost New
Physical Depreciation (% Bad) 0%
Depreciated Value
Economic Depreciation (% Bad) 0%
Functional Depreciation (% Bad) 0%
Total Depreciated Value
Market Area Factor 1.00
Building Value
Misc Improvements Value
Total Improvement Value

Assessed Land Value
   
Assessed Total Value



Addition Summary 
StoryTypeCodeArea
1.00 Res Frame 2Nd Flr FR02 1088
1.00 Garage 28 220
1.00 Covered Porch 18 16
1.00 Covered Porch 18 120
 
Other Improvements 
 


Building Sketch
Photograph
Building Sketch Building Photo
(Click sketch for bigger image)




Copyright © 2022 Durham County, North Carolina.