Building Summary

Data last updated on: 4/3/2026     Ownership current as of: 3/30/2026     Tax Year: 2026
REID 238078

PIN # 0832-12-3348

Location Address Property Description
109 W MARKHAM AVE PROP-107 & 109 W MARKHAM AVE PL:210-106
   
Property Owner Owner's Mailing Address
COURNOYER, JOHN PAUL HUGHES;COURNOYER, LINDSEY TYLER
109 W MARKHAM AVE
DURHAM NC 27701

Value subject to change, property assessment under review

Parcel
Buildings
Misc Improvements
Land
Deeds
Notes
Sales
Photos
Map
Building Location Address
109 W MARKHAM AVE
Building Description
RESFR-RES-FRM-OR-EQ
Card   of  1
Bldg Type RESIDENTIAL
Units 1
Living Area (SQFT) 3167
Number of Stories 2.00
Style CON-CONVENTIONAL
Foundation 04-P-FOOTING/CRWL-SP
Exterior 09-HARD-B/CEMENTBRD
Const Type
Heating 05-PACKAGE-HEAT/COOL
Air Cond
Plumbing Baths (Full):   3
Baths (Half):   0
Extra Fixtures:   0
Total Plumbing Fixtures:   9 
Bedrooms 4
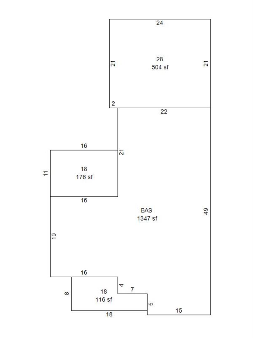
Main Body (SQFT) 1347
Year Built 2024
Additions 4
Effective Year 2024
Remodeled 0
Interior Adj.
Other Features
Building Total & Improvement Details

Grade A+ 175%
Percentage Complete 75
Total Adjusted Replacement Cost New
Physical Depreciation (% Bad) 0%
Depreciated Value
Economic Depreciation (% Bad) 0%
Functional Depreciation (% Bad) 0%
Total Depreciated Value
Market Area Factor 1.00
Building Value
Misc Improvements Value
Total Improvement Value

Assessed Land Value
   
Assessed Total Value



Addition Summary 
StoryTypeCodeArea
1.00 Garage 28 504
1.00 Covered Porch 18 116
1.00 Covered Porch 18 176
1.00 Res Frame 2Nd Flr FR02 1820
 
Other Improvements 
 


Building Sketch
Photograph
Building Sketch Building Photo
(Click sketch for bigger image)




Copyright © 2022 Durham County, North Carolina.