Building Summary

Data last updated on: 4/3/2026     Ownership current as of: 3/30/2026     Tax Year: 2026
REID 238323

PIN # 0831-35-1868

Location Address Property Description
732 HOPKINS ST PROP-TERRY THAYER/LT#02 PL:210-216
   
Property Owner Owner's Mailing Address
BARNES, JACQUELINE K
159 NE MONROE CIR N APT 10
ST PETERSBURG FL 33702

Value subject to change, property assessment under review

Parcel
Buildings
Misc Improvements
Land
Deeds
Notes
Sales
Photos
Map
Building Location Address
732 HOPKINS ST
Building Description
TENFR-TWNHS-E-UN-FR
Card   of  1
Bldg Type RESIDENTIAL
Units 0
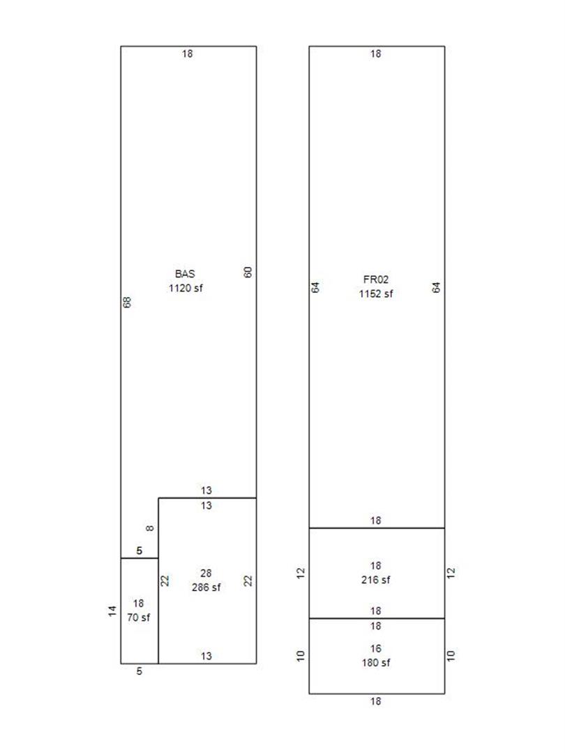
Living Area (SQFT) 2272
Number of Stories 2.00
Style 206-TWN-RW-S-2ST/1CW
Foundation 03-CONTINOUS-SLAB
Exterior 09-HARD-B/CEMENTBRD
Const Type
Heating 05-PACKAGE-HEAT/COOL
Air Cond
Plumbing Baths (Full):   3
Baths (Half):   1
Extra Fixtures:   0
Total Plumbing Fixtures:   11 
Bedrooms 3
Main Body (SQFT) 1120
Year Built 2024
Additions 5
Effective Year 2024
Remodeled 0
Interior Adj.
Other Features
Building Total & Improvement Details

Grade B- 115%
Percentage Complete 25
Total Adjusted Replacement Cost New
Physical Depreciation (% Bad) 0%
Depreciated Value
Economic Depreciation (% Bad) 0%
Functional Depreciation (% Bad) 0%
Total Depreciated Value
Market Area Factor 1.00
Building Value
Misc Improvements Value
Total Improvement Value

Assessed Land Value
   
Assessed Total Value



Addition Summary 
StoryTypeCodeArea
1.00 Res Frame 2Nd Flr FR02 1152
1.00 Garage 28 286
1.00 Covered Porch 18 70
1.00 Covered Porch 18 216
1.00 Frame Deck 16 180
 
Other Improvements 
 


Building Sketch
Photograph
Building Sketch Photo is unavailable for this parcel.
(Click sketch for bigger image)




Copyright © 2022 Durham County, North Carolina.