Building Summary

Data last updated on: 1/29/2026     Ownership current as of: 1/16/2026     Tax Year: 2026
REID 240522

PIN # 0843-76-7391

Location Address Property Description
4003 GLENN RD PROP-EXPERIENCE REALITY INC/LT#06 PL:211-260
   
Property Owner Owner's Mailing Address
MCSWAIN, JEFFREY Y;MCSWAIN, SUSAN M
309 NORTHWOOD CIR
DURHAM NC 27701

Value subject to change, property assessment under review

Parcel
Buildings
Misc Improvements
Land
Deeds
Notes
Sales
Photos
Map
Building Location Address
4003 GLENN RD
Building Description
RESMS-RES-MS-OR-EQ
Card   of  1
Bldg Type RESIDENTIAL
Units 0
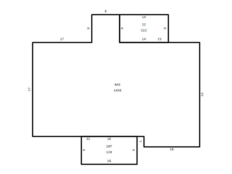
Living Area (SQFT) 1408
Number of Stories 1.00
Style RAN-RANCH
Foundation 04-P-FOOTING/CRWL-SP
Exterior 02-BRICK
Const Type
Heating 05-PACKAGE-HEAT/COOL
Air Cond
Plumbing Baths (Full):   2
Baths (Half):   0
Extra Fixtures:   0
Total Plumbing Fixtures:   6 
Bedrooms 3
Main Body (SQFT) 1408
Year Built 1954
Additions 2
Effective Year 1954
Remodeled 0
Interior Adj.
Other Features
Building Total & Improvement Details

Grade C 100%
Percentage Complete 100
Total Adjusted Replacement Cost New
Physical Depreciation (% Bad) 0%
Depreciated Value
Economic Depreciation (% Bad) 0%
Functional Depreciation (% Bad) 0%
Total Depreciated Value
Market Area Factor 1.00
Building Value
Misc Improvements Value
Total Improvement Value

Assessed Land Value
   
Assessed Total Value



Addition Summary 
StoryTypeCodeArea
1.00 Terrace/Raised Patio 16T 128
1.00 Enclosed Porch 22 112
 
Other Improvements 
UnitsDescriptionItemCodeYear% BadValue
36x24 DIMENSIONS Utility Building RSF 1945 75
 


Building Sketch
Photograph
Building Sketch Photo is unavailable for this parcel.
(Click sketch for bigger image)




Copyright © 2022 Durham County, North Carolina.