Building Summary

Data last updated on: 3/16/2026     Ownership current as of: 3/12/2026     Tax Year: 2026
REID 114311

PIN # 0831-83-2092

Location Address Property Description
2607 SATER ST PROP-MARKHAM ESTATE/PROP- GREEN/LT#018 LT#002-003 PL:00005A-000066
   
Property Owner Owner's Mailing Address
W&N REMODELING LLC
2715 DAVIE DR
DURHAM NC 27704
Parcel
Buildings
Misc Improvements
Land
Deeds
Notes
Sales
Photos
Map
Building Location Address
2607 SATER ST
Building Description
RESMS-RES-MS-OR-EQ
Card   of  1
Bldg Type RESIDENTIAL
Units 1
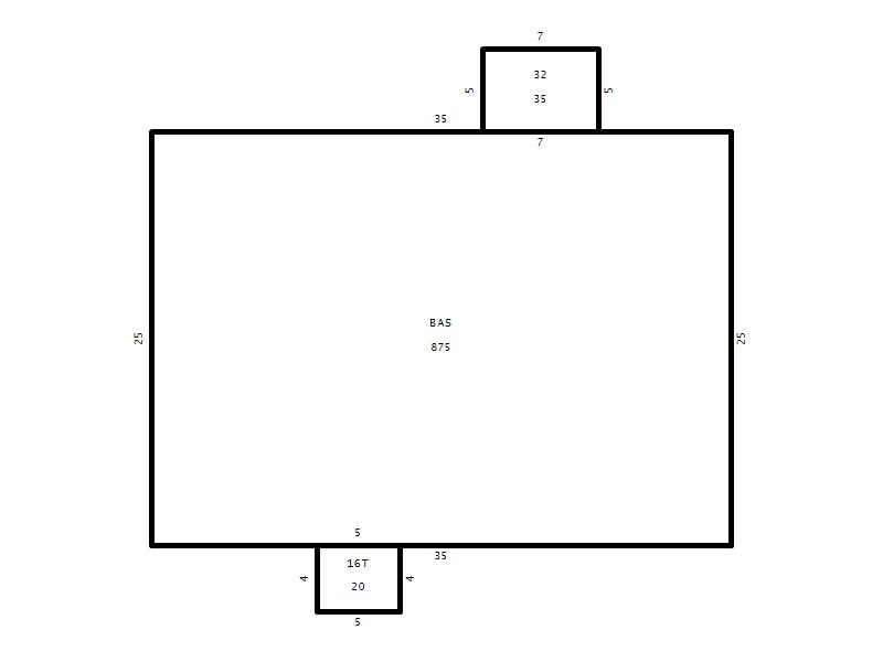
Living Area (SQFT) 875
Number of Stories 1.00
Style RAN-RANCH
Foundation 04-P-FOOTING/CRWL-SP
Exterior 02-BRICK
Const Type
Heating 05-PACKAGE-HEAT/COOL
Air Cond
Plumbing Baths (Full):   1
Baths (Half):   0
Extra Fixtures:   0
Total Plumbing Fixtures:   3 
Bedrooms 2
Main Body (SQFT) 875
Year Built 1956
Additions 2
Effective Year 1956
Remodeled 0
Interior Adj.
Other Features
Building Total & Improvement Details

Grade C 100%
Percentage Complete 100
Total Adjusted Replacement Cost New $194,654
Physical Depreciation (% Bad) 0%
Depreciated Value $107,060
Economic Depreciation (% Bad) 0%
Functional Depreciation (% Bad) 0%
Total Depreciated Value $107,060
Market Area Factor 1.00
Building Value $107,060
Misc Improvements Value $6,401
Total Improvement Value $113,461

Assessed Land Value $148,500
   
Assessed Total Value $261,961



Addition Summary 
StoryTypeCodeArea
1.00 Terrace/Raised Patio 16T 20
1.00 Storage Utility 32 35
 
Other Improvements 
UnitsDescriptionItemCodeYear% BadValue
20x20 DIMENSIONS Garage Frame 1975 70 6401
 


Building Sketch
Photograph
Building Sketch Building Photo
(Click sketch for bigger image)




Copyright © 2022 Durham County, North Carolina.