Building Summary

Data last updated on: 4/2/2026     Ownership current as of: 3/30/2026     Tax Year: 2026
REID 114377

PIN # 0831-72-1768

Location Address Property Description
2308 HARVARD AVE PROP-BECK W S ESTATE/LT#0 1 GR PT PL:000000-000000
   
Property Owner Owner's Mailing Address
SHEPHERD, HANNAH GAIL
2308 HARVARD AVE
DURHAM NC 27703
Parcel
Buildings
Misc Improvements
Land
Deeds
Notes
Sales
Photos
Map
Building Location Address
2308 HARVARD AVE
Building Description
RESMS-RES-MS-OR-EQ
Card   of  1
Bldg Type RESIDENTIAL
Units 1
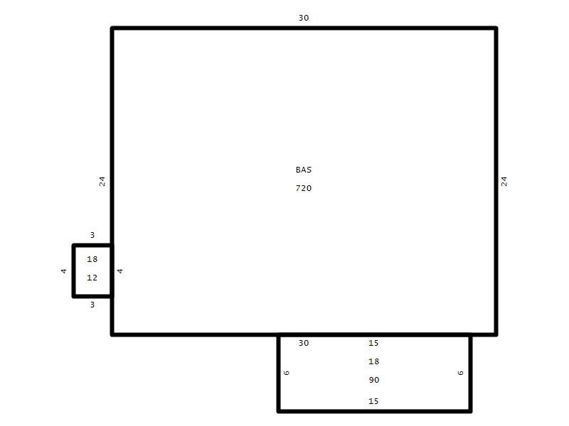
Living Area (SQFT) 720
Number of Stories 1.00
Style RAN-RANCH
Foundation 04-P-FOOTING/CRWL-SP
Exterior 02-BRICK
Const Type
Heating 03-FORCED-HOT-AIR
Air Cond
Plumbing Baths (Full):   1
Baths (Half):   0
Extra Fixtures:   0
Total Plumbing Fixtures:   3 
Bedrooms 2
Main Body (SQFT) 720
Year Built 1953
Additions 2
Effective Year 1953
Remodeled 0
Interior Adj.
Other Features
Building Total & Improvement Details

Grade C+5 105%
Percentage Complete 100
Total Adjusted Replacement Cost New $171,650
Physical Depreciation (% Bad) 0%
Depreciated Value $94,408
Economic Depreciation (% Bad) 0%
Functional Depreciation (% Bad) 0%
Total Depreciated Value $94,408
Market Area Factor 1.00
Building Value $94,408
Misc Improvements Value $3,384
Total Improvement Value $97,792

Assessed Land Value $102,600
   
Assessed Total Value $200,392



Addition Summary 
StoryTypeCodeArea
1.00 Covered Porch 18 90
1.00 Covered Porch 18 12
 
Other Improvements 
UnitsDescriptionItemCodeYear% BadValue
10x9 DIMENSIONS Shed (Open Pole) 1970 75 153
13x22 DIMENSIONS Carport w/Floor 1990 55 3231
 


Building Sketch
Photograph
Building Sketch Building Photo
(Click sketch for bigger image)




Copyright © 2022 Durham County, North Carolina.