Building Summary

Data last updated on: 5/22/2026     Ownership current as of: 5/15/2026     Tax Year: 2026
REID 114378

PIN # 0831-72-3699

Location Address Property Description
309 CODY ST PROP-COMMUNITY CHURCH OF DURHAM INC/LT#02 PL:000020-000058
   
Property Owner Owner's Mailing Address
1FILBERT LLC
377 HUBERT HERNDON RD
CHAPEL HILL NC 27516
Parcel
Buildings
Misc Improvements
Land
Deeds
Notes
Sales
Photos
Map
Building Location Address
309 CODY ST
Card   of  1
Building Details

Building Type RESIDENTIAL
Building Use RESFR-RES-FRM-OR-EQ
Units 1
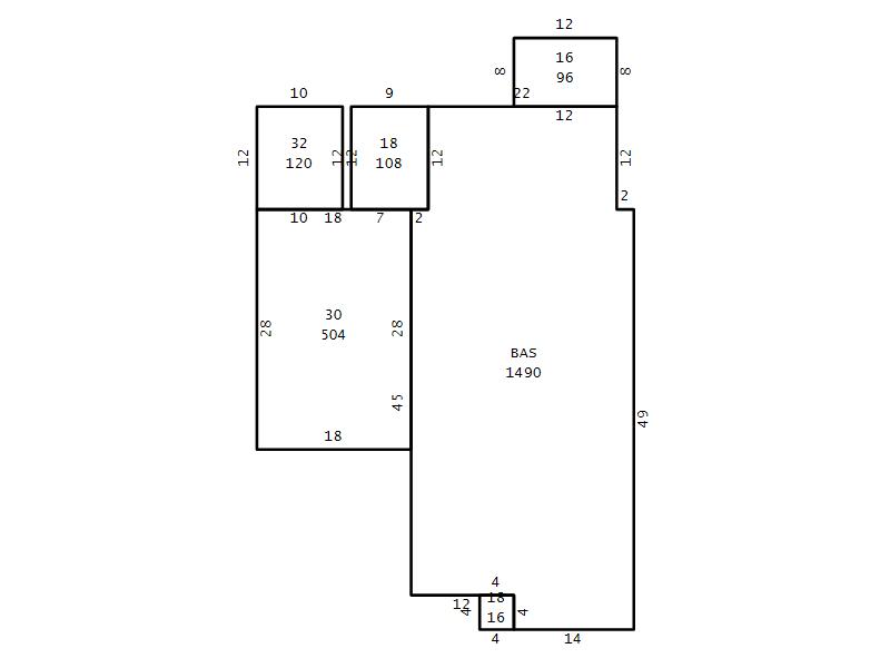
Living Area (SQFT) 1490
Number of Stories 1.00
Style RAN-RANCH
Foundation 04-P-FOOTING/CRWL-SP
Exterior 09-HARD-B/CEMENTBRD
Const Type
Heating 05-PACKAGE-HEAT/COOL
Air Cond
Plumbing Baths (Full):   2
Baths (Half):   0
Extra Fixtures:   0
Total Plumbing Fixtures:   6 
Bedrooms 3
Main Body (SQFT) 1490
Building Description

Year Built 1987
Additions 5
Effective Year 1987
Remodeled 0
Interior Adj.
Other Features
Building Total & Improvement Details

Grade C- 95%
Percentage Complete 100
Total Adjusted Replacement Cost New $268,454
Physical Depreciation (% Bad) 0%
Depreciated Value $150,334
Economic Depreciation (% Bad) 0%
Functional Depreciation (% Bad) 0%
Total Depreciated Value $150,334
Market Area Factor 1.00
Building Value $150,334
Misc Improvements Value $163
Total Improvement Value $150,497

Assessed Land Value $132,000
   
Assessed Total Value $282,497



Addition Summary 
StoryTypeCodeArea
1.00 Storage Utility 32 120
1.00 Frame Deck 16 96
1.00 Covered Porch 18 16
1.00 Covered Porch 18 108
1.00 Carport 30 504
 
Other Improvements 
UnitsDescriptionItemCodeYear% BadValue
8x12 DIMENSIONS Shed (Open Pole) 1988 75 163
 


Building Sketch
Photograph
Building Sketch Building Photo
(Click sketch for bigger image)




Copyright © 2022 Durham County, North Carolina.