Building Summary

Data last updated on: 1/8/2026     Ownership current as of: 12/23/2025     Tax Year: 2026
REID 114403

PIN # 0831-82-6420

Location Address Property Description
320 S BENJAMINE ST PROP-BROWN D W/LT#01 PL:000103-000146
   
Property Owner Owner's Mailing Address
ROSSER, DANIEL LOCKE
320 S BENJAMINE ST
DURHAM NC 27703
Parcel
Buildings
Misc Improvements
Land
Deeds
Notes
Sales
Photos
Map
Building Location Address
320 S BENJAMINE ST
Building Description
RESMS-RES-MS-OR-EQ
Card   of  1
Bldg Type RESIDENTIAL
Units 1
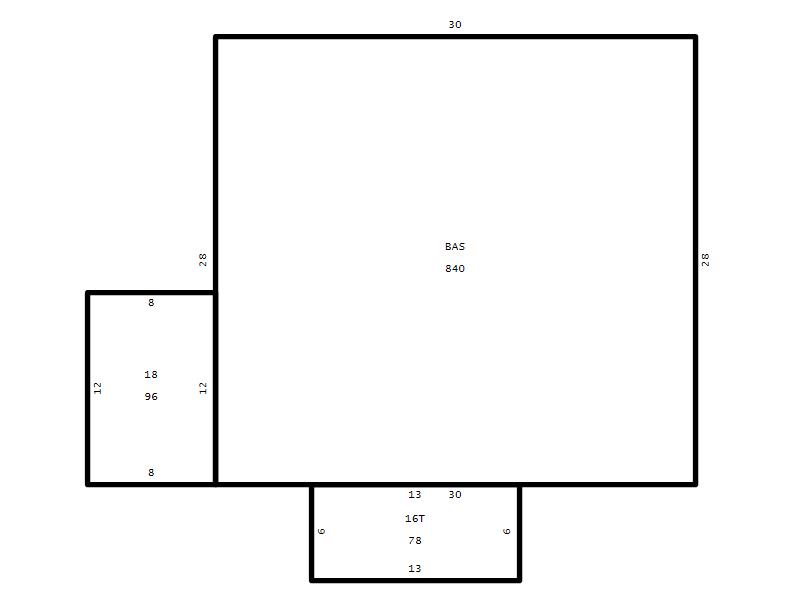
Living Area (SQFT) 840
Number of Stories 1.00
Style RAN-RANCH
Foundation 04-P-FOOTING/CRWL-SP
Exterior 02-BRICK
Const Type
Heating 06-HEAT-PUMP
Air Cond
Plumbing Baths (Full):   1
Baths (Half):   0
Extra Fixtures:   0
Total Plumbing Fixtures:   3 
Bedrooms 2
Main Body (SQFT) 840
Year Built 1950
Additions 2
Effective Year 1950
Remodeled 0
Interior Adj.
Other Features
Building Total & Improvement Details

Grade C 100%
Percentage Complete 100
Total Adjusted Replacement Cost New $185,783
Physical Depreciation (% Bad) 0%
Depreciated Value $102,181
Economic Depreciation (% Bad) 0%
Functional Depreciation (% Bad) 0%
Total Depreciated Value $102,181
Market Area Factor 1.00
Building Value $102,181
Misc Improvements Value
Total Improvement Value $102,181

Assessed Land Value $129,800
   
Assessed Total Value $231,981



Addition Summary 
StoryTypeCodeArea
1.00 Terrace/Raised Patio 16T 78
1.00 Covered Porch 18 96
 
Other Improvements 
 


Building Sketch
Photograph
Building Sketch Building Photo
(Click sketch for bigger image)




Copyright © 2022 Durham County, North Carolina.