Building Summary

Data last updated on: 5/22/2026     Ownership current as of: 5/15/2026     Tax Year: 2026
REID 114414

PIN # 0831-82-3142

Location Address Property Description
2612 ASHE ST PROP-PROCTOR LAND/LT#06 PL:00005A-000011
   
Property Owner Owner's Mailing Address
JACKSON, BENJAMIN
2612 ASHE ST
DURHAM NC 27703
Parcel
Buildings
Misc Improvements
Land
Deeds
Notes
Sales
Photos
Map
Building Location Address
2612 ASHE ST
Card   of  1
Building Details

Building Type RESIDENTIAL
Building Use RESFR-RES-FRM-OR-EQ
Units 1
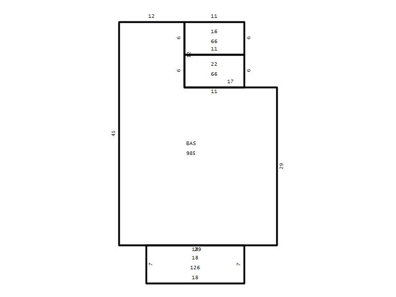
Living Area (SQFT) 985
Number of Stories 1.00
Style RAN-RANCH
Foundation 04-P-FOOTING/CRWL-SP
Exterior 08-VINYL/ALUMINUM
Const Type
Heating 05-PACKAGE-HEAT/COOL
Air Cond
Plumbing Baths (Full):   1
Baths (Half):   0
Extra Fixtures:   0
Total Plumbing Fixtures:   3 
Bedrooms 2
Main Body (SQFT) 985
Building Description

Year Built 1940
Additions 3
Effective Year 1940
Remodeled 0
Interior Adj.
Other Features
Building Total & Improvement Details

Grade C 100%
Percentage Complete 100
Total Adjusted Replacement Cost New $201,791
Physical Depreciation (% Bad) 0%
Depreciated Value $131,164
Economic Depreciation (% Bad) 0%
Functional Depreciation (% Bad) 0%
Total Depreciated Value $131,164
Market Area Factor 1.00
Building Value $131,164
Misc Improvements Value $6,273
Total Improvement Value $137,437

Assessed Land Value $128,700
   
Assessed Total Value $266,137



Addition Summary 
StoryTypeCodeArea
1.00 Frame Deck 16 66
1.00 Covered Porch 18 126
1.00 Enclosed Porch 22 66
 
Other Improvements 
UnitsDescriptionItemCodeYear% BadValue
392 SIZE Garage Frame 1975 70 6273
 


Building Sketch
Photograph
Building Sketch Building Photo
(Click sketch for bigger image)




Copyright © 2022 Durham County, North Carolina.