Building Summary

Data last updated on: 4/2/2026     Ownership current as of: 3/30/2026     Tax Year: 2026
REID 114473

PIN # 0831-71-4981

Location Address Property Description
2410 OWEN ST PROP-MAY W B/E E JONES LO T PL:000000-000000
   
Property Owner Owner's Mailing Address
VEGA, MICHELLE R
2410 OWEN ST
DURHAM NC 27703
Parcel
Buildings
Misc Improvements
Land
Deeds
Notes
Sales
Photos
Map
Building Location Address
2410 OWEN ST
Building Description
RESFR-RES-FRM-OR-EQ
Card   of  1
Bldg Type RESIDENTIAL
Units 1
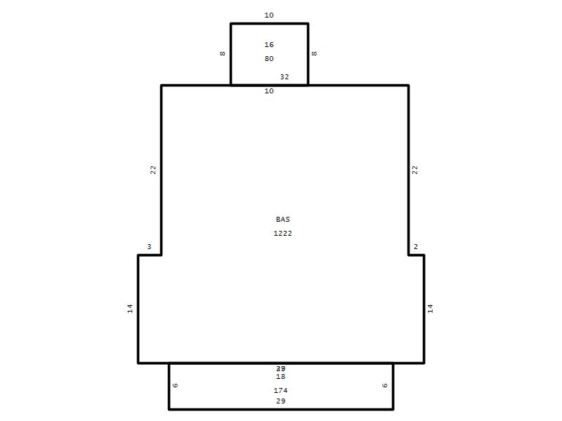
Living Area (SQFT) 1222
Number of Stories 1.00
Style RAN-RANCH
Foundation 04-P-FOOTING/CRWL-SP
Exterior 08-VINYL/ALUMINUM
Const Type
Heating 05-PACKAGE-HEAT/COOL
Air Cond
Plumbing Baths (Full):   2
Baths (Half):   0
Extra Fixtures:   0
Total Plumbing Fixtures:   6 
Bedrooms 3
Main Body (SQFT) 1222
Year Built 1915
Additions 2
Effective Year 1915
Remodeled 0
Interior Adj.
Other Features
Building Total & Improvement Details

Grade B+ 135%
Percentage Complete 100
Total Adjusted Replacement Cost New $316,277
Physical Depreciation (% Bad) 0%
Depreciated Value $268,835
Economic Depreciation (% Bad) 0%
Functional Depreciation (% Bad) 0%
Total Depreciated Value $268,835
Market Area Factor 1.00
Building Value $268,835
Misc Improvements Value
Total Improvement Value $268,835

Assessed Land Value $125,400
   
Assessed Total Value $394,235



Addition Summary 
StoryTypeCodeArea
1.00 Frame Deck 16 80
1.00 Covered Porch 18 174
 
Other Improvements 
 


Building Sketch
Photograph
Building Sketch Building Photo
(Click sketch for bigger image)




Copyright © 2022 Durham County, North Carolina.