Building Summary

Data last updated on: 4/2/2026     Ownership current as of: 3/30/2026     Tax Year: 2026
REID 115081

PIN # 0821-64-9244

Location Address Property Description
1029 S DUKE ST PROP-S DUKE STREET/LT#06 MOREHEAD HILL/HD PL:000200-000117
   
Property Owner Owner's Mailing Address
EVA B JANSSON TRUSTEE;EVA B JANSSON LIVING TRUST;ROBIN M FAMIGLIETTI TRUSTEE;ROBIN M FAMIGLIETTI LIVING TRUST
1029 S DUKE ST
DURHAM NC 27707
Parcel
Buildings
Misc Improvements
Land
Deeds
Notes
Sales
Photos
Map
Building Location Address
1029 S DUKE ST
Building Description
RESMS-RES-MS-OR-EQ
Card   of  1
Bldg Type RESIDENTIAL
Units 1
Living Area (SQFT) 3040
Number of Stories 3.00
Style CON-CONVENTIONAL
Foundation 03-CONTINOUS-SLAB
Exterior 02-BRICK
Const Type
Heating 05-PACKAGE-HEAT/COOL
Air Cond
Plumbing Baths (Full):   3
Baths (Half):   1
Extra Fixtures:   0
Total Plumbing Fixtures:   11 
Bedrooms 4
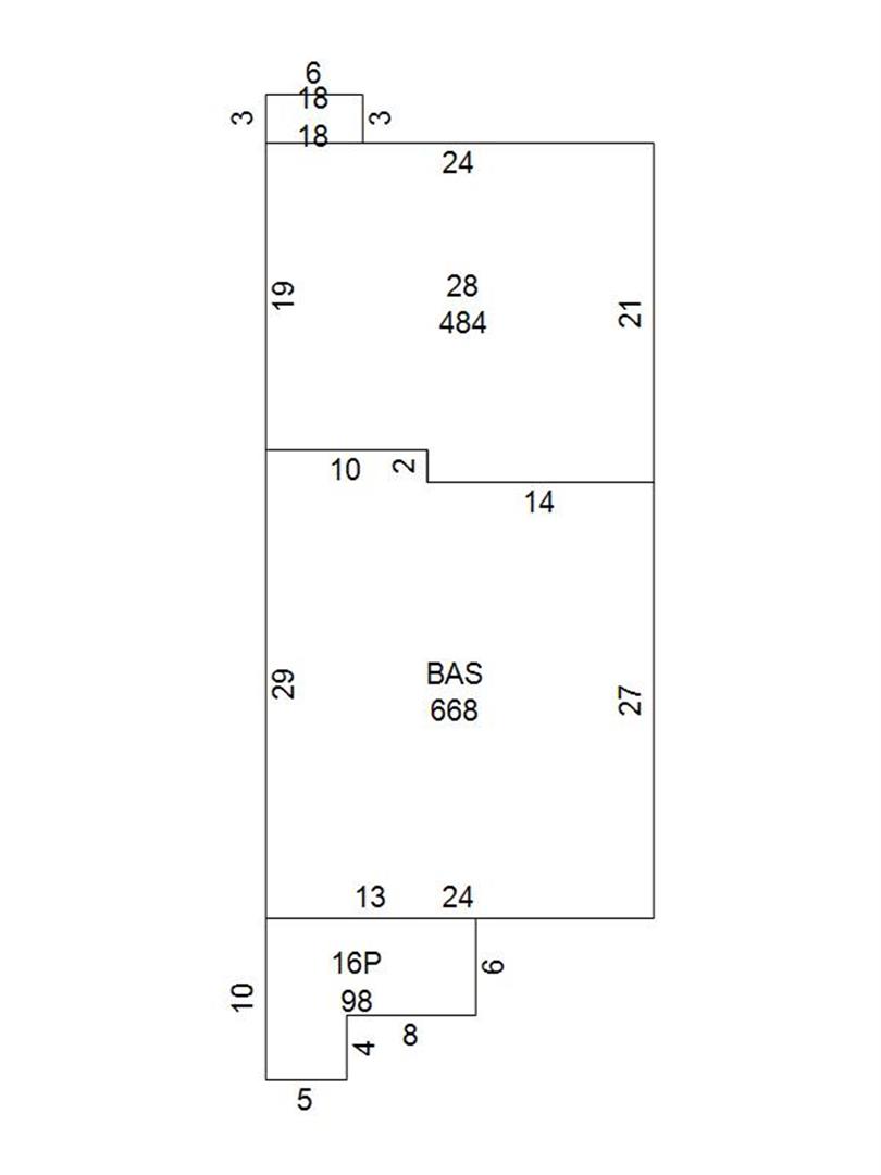
Main Body (SQFT) 668
Year Built 2019
Additions 8
Effective Year 2019
Remodeled 0
Interior Adj.
Other Features
Building Total & Improvement Details

Grade A+ 175%
Percentage Complete 100
Total Adjusted Replacement Cost New $821,417
Physical Depreciation (% Bad) 0%
Depreciated Value $834,933
Economic Depreciation (% Bad) 0%
Functional Depreciation (% Bad) 0%
Total Depreciated Value $834,933
Market Area Factor 1.00
Building Value $834,933
Misc Improvements Value $8,995
Total Improvement Value $843,928

Assessed Land Value $250,000
   
Assessed Total Value $1,093,928



Addition Summary 
StoryTypeCodeArea
1.00 Garage 28 484
1.00 Patio 16P 98
1.00 Covered Porch 18 18
1.00 Res Frame 2Nd Flr FR02 1093
1.00 Res Frame 3Rd Flr FR03 1093
1.00 Res Frame 4Th Flr FR04 186
1.00 Terrace/Raised Patio 16T 384
1.00 Covered Porch 18 32
 
Other Improvements 
UnitsDescriptionItemCodeYear% BadValue
573 SIZE Patio 2019 10 8995
 


Building Sketch
Photograph
Building Sketch Building Photo
(Click sketch for bigger image)




Copyright © 2022 Durham County, North Carolina.