Building Summary

Data last updated on: 4/27/2026     Ownership current as of: 4/23/2026     Tax Year: 2026
REID 115374

PIN # 0821-52-1681

Location Address Property Description
1519 HERMITAGE CT FOREST HILLS/SEC:02/BLK:A /LT#08 PL:00005B-000127
   
Property Owner Owner's Mailing Address
WALTON, WILLIAM HUNTER;WALTON, KATHERINE
1519 HERMITAGE CT
DURHAM NC 27707
Parcel
Buildings
Misc Improvements
Land
Deeds
Notes
Sales
Photos
Map
Building Location Address
1519 HERMITAGE CT
Building Description
RESMS-RES-MS-OR-EQ
Card   of  1
Bldg Type RESIDENTIAL
Units 1
Living Area (SQFT) 3030
Number of Stories 2.00
Style CON-CONVENTIONAL
Foundation 04-P-FOOTING/CRWL-SP
Exterior 02-BRICK
Const Type
Heating 03-FORCED-HOT-AIR
Air Cond
Plumbing Baths (Full):   2
Baths (Half):   1
Extra Fixtures:   0
Total Plumbing Fixtures:   8 
Bedrooms 4
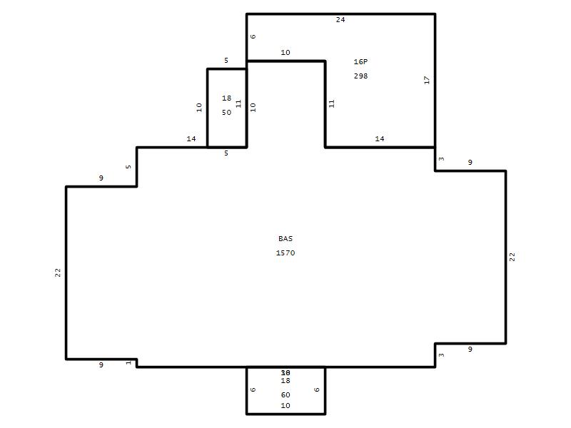
Main Body (SQFT) 1570
Year Built 1915
Additions 4
Effective Year 1915
Remodeled 0
Interior Adj.
Other Features
Building Total & Improvement Details

Grade B+ 135%
Percentage Complete 100
Total Adjusted Replacement Cost New $591,024
Physical Depreciation (% Bad) 0%
Depreciated Value $384,166
Economic Depreciation (% Bad) 0%
Functional Depreciation (% Bad) 0%
Total Depreciated Value $384,166
Market Area Factor 1.00
Building Value $384,166
Misc Improvements Value $5,600
Total Improvement Value $389,766

Assessed Land Value $346,500
   
Assessed Total Value $736,266



Addition Summary 
StoryTypeCodeArea
1.00 Patio 16P 298
1.00 Covered Porch 18 60
1.00 Covered Porch 18 50
1.00 Res Mas 2Nd Flr MS02 1460
 
Other Improvements 
UnitsDescriptionItemCodeYear% BadValue
400 SIZE Garage Masonry 1915 75 5600
 


Building Sketch
Photograph
Building Sketch Building Photo
(Click sketch for bigger image)




Copyright © 2022 Durham County, North Carolina.