Building Summary

Data last updated on: 4/27/2026     Ownership current as of: 4/23/2026     Tax Year: 2026
REID 115501

PIN # 0821-52-3146

Location Address Property Description
1603 HERMITAGE CT PROP-1603 & 1605 HERITAGE COURT PL:000204-000387
   
Property Owner Owner's Mailing Address
CARLSON, SUSAN;TAYLOR, COOPER
1603 HERMITAGE CT
DURHAM NC 27707

Value subject to change, property assessment under review

Parcel
Buildings
Misc Improvements
Land
Deeds
Notes
Sales
Photos
Map
Building Location Address
1603 HERMITAGE CT
Building Description
RESFR-RES-FRM-OR-EQ
Card   of  1
Bldg Type RESIDENTIAL
Units 1
Living Area (SQFT) 3586
Number of Stories 2.00
Style COL-COLONIAL
Foundation 06-BASEMENT
Exterior 01-WOOD-PANEL
Const Type
Heating 05-PACKAGE-HEAT/COOL
Air Cond
Plumbing Baths (Full):   3
Baths (Half):   0
Extra Fixtures:   0
Total Plumbing Fixtures:   9 
Bedrooms 4
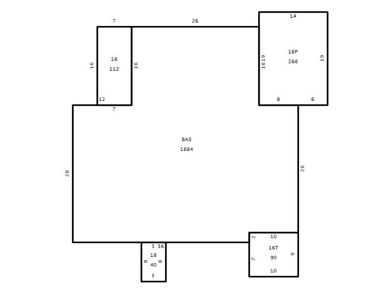
Main Body (SQFT) 1684
Year Built 1928
Additions 6
Effective Year 1928
Remodeled 0
Interior Adj.
Other Features
Building Total & Improvement Details

Grade B+ 135%
Percentage Complete 100
Total Adjusted Replacement Cost New
Physical Depreciation (% Bad) 0%
Depreciated Value
Economic Depreciation (% Bad) 0%
Functional Depreciation (% Bad) 0%
Total Depreciated Value
Market Area Factor 1.00
Building Value
Misc Improvements Value
Total Improvement Value

Assessed Land Value
   
Assessed Total Value



Addition Summary 
StoryTypeCodeArea
1.00 Frame Deck 16 112
1.00 Patio 16P 266
1.00 Terrace/Raised Patio 16T 90
1.00 Covered Porch 18 40
1.00 Res Frame 2Nd Flr FR02 1268
1.00 Finished Basement 14 634
 
Other Improvements 
UnitsDescriptionItemCodeYear% BadValue
480 SIZE Garage Frame 1987 60
90 SIZE Patio 1928 75
14x18 DIMENSIONS Patio 1990 55
38x16 DIMENSIONS Swimming Pool/Concrete 2021 30
 


Building Sketch
Photograph
Building Sketch Building Photo
(Click sketch for bigger image)




Copyright © 2022 Durham County, North Carolina.