Building Summary

Data last updated on: 4/27/2026     Ownership current as of: 4/23/2026     Tax Year: 2026
REID 115599

PIN # 0821-30-5425

Location Address Property Description
2312 UNIVERSITY DR PROP-WHITE R SHELTON/LT#0 6-07 PL:00006B-000131
   
Property Owner Owner's Mailing Address
CHRISTOFFERSON, ERIK D;CHRISTOFFERSON, MONIREH
1101 W MAIN ST
DURHAM NC 27701
Parcel
Buildings
Misc Improvements
Land
Deeds
Notes
Sales
Photos
Map
Building Location Address
2312 UNIVERSITY DR
Building Description
RESMS-RES-MS-OR-EQ
Card   of  1
Bldg Type RESIDENTIAL
Units 1
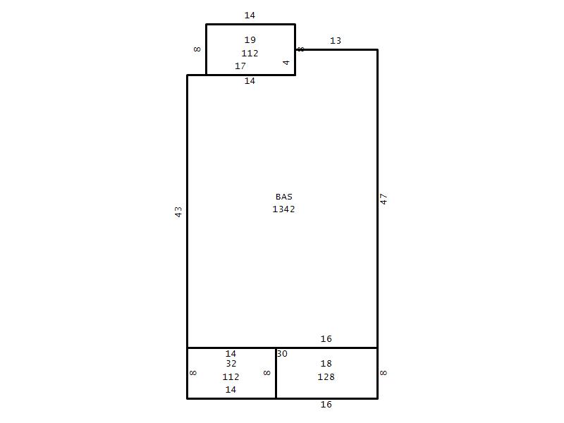
Living Area (SQFT) 1342
Number of Stories 1.00
Style RAN-RANCH
Foundation 04-P-FOOTING/CRWL-SP
Exterior 02-BRICK
Const Type
Heating 03-FORCED-HOT-AIR
Air Cond
Plumbing Baths (Full):   1
Baths (Half):   0
Extra Fixtures:   0
Total Plumbing Fixtures:   3 
Bedrooms 3
Main Body (SQFT) 1342
Year Built 1900
Additions 3
Effective Year 1900
Remodeled 0
Interior Adj.
Other Features
Building Total & Improvement Details

Grade D 75%
Percentage Complete 100
Total Adjusted Replacement Cost New $194,452
Physical Depreciation (% Bad) 0%
Depreciated Value $106,949
Economic Depreciation (% Bad) 0%
Functional Depreciation (% Bad) 0%
Total Depreciated Value $106,949
Market Area Factor 1.00
Building Value $106,949
Misc Improvements Value $2,570
Total Improvement Value $109,519

Assessed Land Value $346,500
   
Assessed Total Value $456,019



Addition Summary 
StoryTypeCodeArea
1.00 Covered Porch 18 128
1.00 Screen Porch 19 112
1.00 Storage Utility 32 112
 
Other Improvements 
UnitsDescriptionItemCodeYear% BadValue
12x16 DIMENSIONS Carport w/Floor 2000 45 2570
 


Building Sketch
Photograph
Building Sketch Building Photo
(Click sketch for bigger image)




Copyright © 2022 Durham County, North Carolina.