Building Summary

Data last updated on: 4/27/2026     Ownership current as of: 4/23/2026     Tax Year: 2026
REID 115664

PIN # 0821-40-4382

Location Address Property Description
100 FORESTWOOD DR FOREST HILLS EXT/SEC:02/BLK:C/LT#01-02 PL:00006A-000018
   
Property Owner Owner's Mailing Address
LUCKING, ANDREW;LUCKING, EMILIE
100 FORESTWOOD DR
DURHAM NC 27707
Parcel
Buildings
Misc Improvements
Land
Deeds
Notes
Sales
Photos
Map
Building Location Address
100 FORESTWOOD DR
Building Description
RESFR-RES-FRM-OR-EQ
Card   of  1
Bldg Type RESIDENTIAL
Units 1
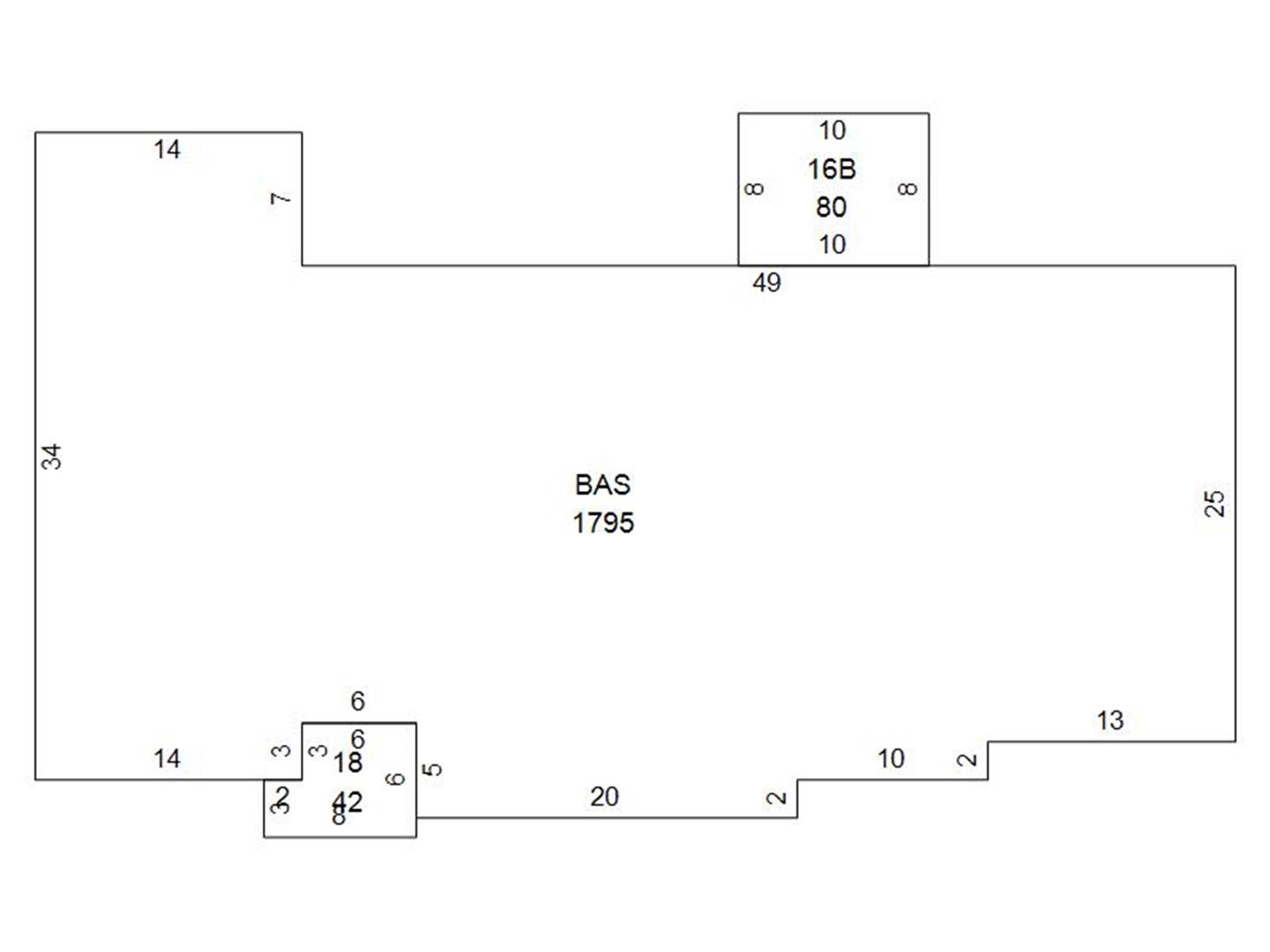
Living Area (SQFT) 1795
Number of Stories 1.00
Style RAN-RANCH
Foundation 04-P-FOOTING/CRWL-SP
Exterior 09-HARD-B/CEMENTBRD
Const Type
Heating 05-PACKAGE-HEAT/COOL
Air Cond
Plumbing Baths (Full):   1
Baths (Half):   0
Extra Fixtures:   0
Total Plumbing Fixtures:   3 
Bedrooms 2
Main Body (SQFT) 1795
Year Built 1951
Additions 2
Effective Year 1951
Remodeled 0
Interior Adj.
Other Features
Building Total & Improvement Details

Grade C 100%
Percentage Complete 100
Total Adjusted Replacement Cost New $294,229
Physical Depreciation (% Bad) 0%
Depreciated Value $191,249
Economic Depreciation (% Bad) 0%
Functional Depreciation (% Bad) 0%
Total Depreciated Value $191,249
Market Area Factor 1.00
Building Value $191,249
Misc Improvements Value
Total Improvement Value $191,249

Assessed Land Value $327,250
   
Assessed Total Value $518,499



Addition Summary 
StoryTypeCodeArea
1.00 Covered Porch 18 42
1.00 Concrete Slab 16B 80
 
Other Improvements 
UnitsDescriptionItemCodeYear% BadValue
4x5 DIMENSIONS Shed Personal Property 2000 75
 


Building Sketch
Photograph
Building Sketch Building Photo
(Click sketch for bigger image)




Copyright © 2022 Durham County, North Carolina.