Building Summary

Data last updated on: 4/27/2026     Ownership current as of: 4/23/2026     Tax Year: 2026
REID 115722

PIN # 0821-60-7572

Location Address Property Description
72 BEVERLY DR PROP-ZENNET JOHN III-ILLA NA CALLOWAY/LT#01 #02 6F PL:000061-000027
   
Property Owner Owner's Mailing Address
US BANK TRUST COMPANY NATIONAL ASSOCIATION TRUSTEE;PRPM 2025-7
PO BOX 809441
CHICAGO IL 60680
Parcel
Buildings
Misc Improvements
Land
Deeds
Notes
Sales
Photos
Map
Building Location Address
72 BEVERLY DR
Building Description
RESMS-RES-MS-OR-EQ
Card   of  1
Bldg Type RESIDENTIAL
Units 1
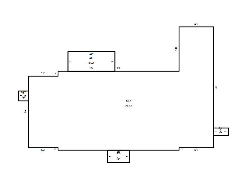
Living Area (SQFT) 2602
Number of Stories 1.00
Style RAN-RANCH
Foundation 04-P-FOOTING/CRWL-SP
Exterior 02-BRICK
Const Type
Heating 05-PACKAGE-HEAT/COOL
Air Cond
Plumbing Baths (Full):   3
Baths (Half):   1
Extra Fixtures:   0
Total Plumbing Fixtures:   11 
Bedrooms 5
Main Body (SQFT) 2602
Year Built 1963
Additions 6
Effective Year 1963
Remodeled 0
Interior Adj.
Other Features
Building Total & Improvement Details

Grade B 120%
Percentage Complete 100
Total Adjusted Replacement Cost New $536,727
Physical Depreciation (% Bad) 0%
Depreciated Value $359,607
Economic Depreciation (% Bad) 0%
Functional Depreciation (% Bad) 0%
Total Depreciated Value $359,607
Market Area Factor 1.00
Building Value $359,607
Misc Improvements Value $65,174
Total Improvement Value $424,781

Assessed Land Value $641,520
   
Assessed Total Value $1,066,301



Addition Summary 
StoryTypeCodeArea
1.00 Frame Deck 16 152
1.00 Terrace/Raised Patio 16T 16
1.00 Covered Porch 18 45
1.00 Covered Porch 18 152
1.00 Frame Deck 16 18
1.00 Unfinished Basement 10 728
 
Other Improvements 
UnitsDescriptionItemCodeYear% BadValue
800 SIZE Swimming Pool/Concrete 1978 50 31523
200 SIZE Shed (Open Pole) 1994 75 333
1335 SIZE Deck 2023 5 33318
 


Building Sketch
Photograph
Building Sketch Building Photo
(Click sketch for bigger image)




Copyright © 2022 Durham County, North Carolina.