Building Summary

Data last updated on: 4/2/2026     Ownership current as of: 3/30/2026     Tax Year: 2026
REID 115882

PIN # 0820-78-4681

Location Address Property Description
104 W WEAVER ST FAYETTEVILLE RD DEV/BLK 2 1/LT#02 PL:000021-000015
   
Property Owner Owner's Mailing Address
BUNBURY PROPERTY SOLUTIONS LLC
12218 BRADFORD GREEN SQ #216
CARY NC 27519
Parcel
Buildings
Misc Improvements
Land
Deeds
Notes
Sales
Photos
Map
Building Location Address
104 W WEAVER ST
Building Description
RESFR-RES-FRM-OR-EQ
Card   of  1
Bldg Type RESIDENTIAL
Units 1
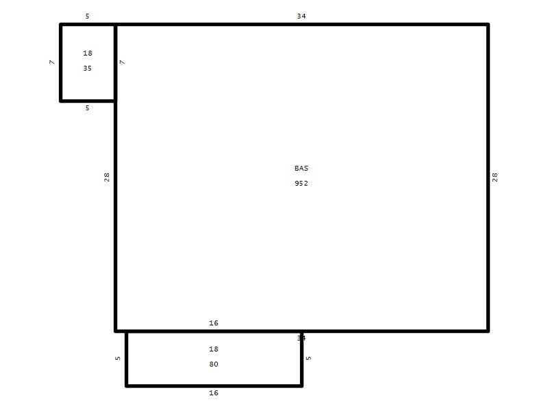
Living Area (SQFT) 952
Number of Stories 1.00
Style RAN-RANCH
Foundation 04-P-FOOTING/CRWL-SP
Exterior 08-VINYL/ALUMINUM
Const Type
Heating 05-PACKAGE-HEAT/COOL
Air Cond
Plumbing Baths (Full):   1
Baths (Half):   0
Extra Fixtures:   0
Total Plumbing Fixtures:   3 
Bedrooms 3
Main Body (SQFT) 952
Year Built 1961
Additions 2
Effective Year 1961
Remodeled 0
Interior Adj.
Other Features
Building Total & Improvement Details

Grade C- 95%
Percentage Complete 100
Total Adjusted Replacement Cost New $181,319
Physical Depreciation (% Bad) 0%
Depreciated Value $99,725
Economic Depreciation (% Bad) 0%
Functional Depreciation (% Bad) 0%
Total Depreciated Value $99,725
Market Area Factor 1.00
Building Value $99,725
Misc Improvements Value $371
Total Improvement Value $100,096

Assessed Land Value $99,750
   
Assessed Total Value $199,846



Addition Summary 
StoryTypeCodeArea
1.00 Covered Porch 18 80
1.00 Covered Porch 18 35
 
Other Improvements 
UnitsDescriptionItemCodeYear% BadValue
5x15 DIMENSIONS Patio 1961 75 371
8x12 DIMENSIONS Shed Personal Property 1961 75
 


Building Sketch
Photograph
Building Sketch Building Photo
(Click sketch for bigger image)




Copyright © 2022 Durham County, North Carolina.