Building Summary

Data last updated on: 4/2/2026     Ownership current as of: 3/30/2026     Tax Year: 2026
REID 115938

PIN # 0820-69-2165

Location Address Property Description
302 NORMANDY ST PROP-SPAULDING-MERRICK-MC DG/LT#14 PL:000016-000183
   
Property Owner Owner's Mailing Address
LEGACY ESTATES DEVELOPMENT CONSULTING LLC
5712 HEATHERSTONE DR
RALEIGH NC 27606
Parcel
Buildings
Misc Improvements
Land
Deeds
Notes
Sales
Photos
Map
Building Location Address
302 NORMANDY ST
Building Description
RESMS-RES-MS-OR-EQ
Card   of  1
Bldg Type RESIDENTIAL
Units 1
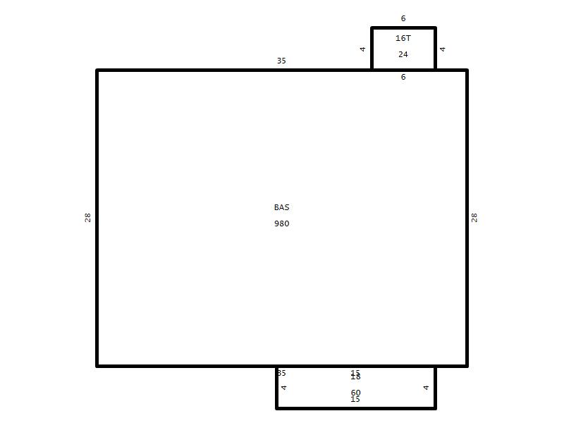
Living Area (SQFT) 980
Number of Stories 1.00
Style RAN-RANCH
Foundation 04-P-FOOTING/CRWL-SP
Exterior 02-BRICK
Const Type
Heating 05-PACKAGE-HEAT/COOL
Air Cond
Plumbing Baths (Full):   1
Baths (Half):   0
Extra Fixtures:   0
Total Plumbing Fixtures:   3 
Bedrooms 3
Main Body (SQFT) 980
Year Built 1963
Additions 2
Effective Year 1963
Remodeled 0
Interior Adj.
Other Features
Building Total & Improvement Details

Grade C- 95%
Percentage Complete 100
Total Adjusted Replacement Cost New $190,852
Physical Depreciation (% Bad) 0%
Depreciated Value $108,786
Economic Depreciation (% Bad) 0%
Functional Depreciation (% Bad) 0%
Total Depreciated Value $108,786
Market Area Factor 1.00
Building Value $108,786
Misc Improvements Value
Total Improvement Value $108,786

Assessed Land Value $100,625
   
Assessed Total Value $209,411



Addition Summary 
StoryTypeCodeArea
1.00 Terrace/Raised Patio 16T 24
1.00 Covered Porch 18 60
 
Other Improvements 
 


Building Sketch
Photograph
Building Sketch Building Photo
(Click sketch for bigger image)




Copyright © 2022 Durham County, North Carolina.