Building Summary

Data last updated on: 4/2/2026     Ownership current as of: 3/30/2026     Tax Year: 2026
REID 115980

PIN # 0820-89-6040

Location Address Property Description
2112 CONCORD ST PROP-PAGE JOHN EST/LT#02 S 1/2 PL:000011-000041
   
Property Owner Owner's Mailing Address
RODRIGUEZ, ROLANDO;RODRIGUEZ, ROLANDO ONELIO
2112 CONCORD ST
DURHAM NC 27707
Parcel
Buildings
Misc Improvements
Land
Deeds
Notes
Sales
Photos
Map
Building Location Address
2112 CONCORD ST
Building Description
RESFR-RES-FRM-OR-EQ
Card   of  1
Bldg Type RESIDENTIAL
Units 1
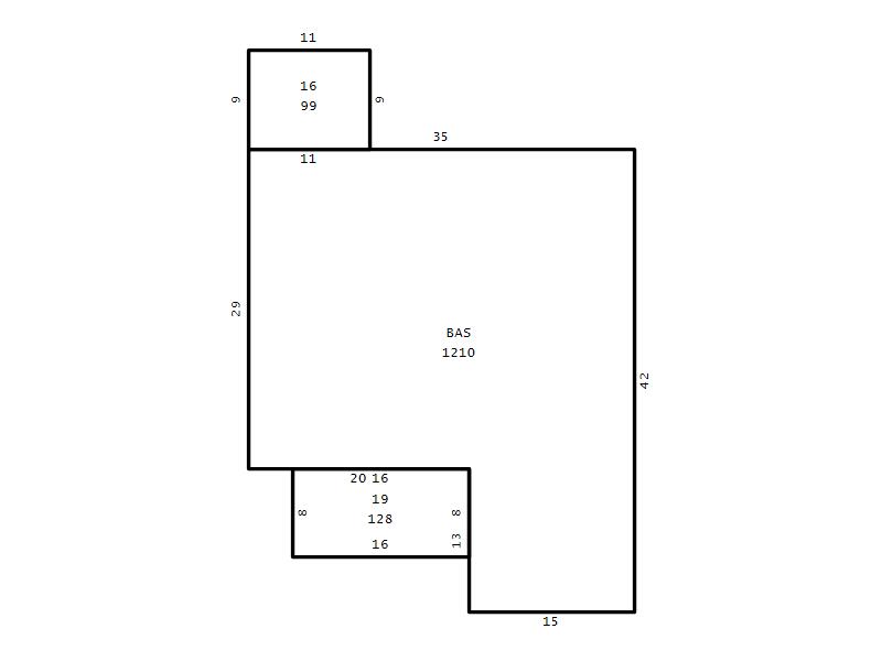
Living Area (SQFT) 1210
Number of Stories 1.00
Style RAN-RANCH
Foundation 06-BASEMENT
Exterior 09-HARD-B/CEMENTBRD
Const Type
Heating 05-PACKAGE-HEAT/COOL
Air Cond
Plumbing Baths (Full):   1
Baths (Half):   0
Extra Fixtures:   0
Total Plumbing Fixtures:   3 
Bedrooms 2
Main Body (SQFT) 1210
Year Built 1945
Additions 3
Effective Year 1945
Remodeled 0
Interior Adj.
Other Features
Building Total & Improvement Details

Grade C- 95%
Percentage Complete 100
Total Adjusted Replacement Cost New $225,250
Physical Depreciation (% Bad) 0%
Depreciated Value $123,888
Economic Depreciation (% Bad) 0%
Functional Depreciation (% Bad) 0%
Total Depreciated Value $123,888
Market Area Factor 1.00
Building Value $123,888
Misc Improvements Value
Total Improvement Value $123,888

Assessed Land Value $105,000
   
Assessed Total Value $228,888



Addition Summary 
StoryTypeCodeArea
1.00 Frame Deck 16 99
1.00 Screen Porch 19 128
1.00 Unfinished Basement 10 329
 
Other Improvements 
 


Building Sketch
Photograph
Building Sketch Building Photo
(Click sketch for bigger image)




Copyright © 2022 Durham County, North Carolina.