Building Summary

Data last updated on: 4/2/2026     Ownership current as of: 3/30/2026     Tax Year: 2026
REID 115984

PIN # 0820-89-6291

Location Address Property Description
2102 CONCORD ST PROP-REAVES W C PL:000038-000169
   
Property Owner Owner's Mailing Address
MITCHELL, RASHEEM D;ROBINSON, LASHONDA D
2102 CONCORD ST
DURHAM NC 27707
Parcel
Buildings
Misc Improvements
Land
Deeds
Notes
Sales
Photos
Map
Building Location Address
2102 CONCORD ST
Building Description
RESMS-RES-MS-OR-EQ
Card   of  1
Bldg Type RESIDENTIAL
Units 1
Living Area (SQFT) 1506
Number of Stories 1.00
Style RAN-RANCH
Foundation 06-BASEMENT
Exterior 02-BRICK
Const Type
Heating 05-PACKAGE-HEAT/COOL
Air Cond
Plumbing Baths (Full):   2
Baths (Half):   0
Extra Fixtures:   0
Total Plumbing Fixtures:   6 
Bedrooms 2
Main Body (SQFT) 1506
Year Built 1959
Additions 6
Effective Year 1959
Remodeled 0
Interior Adj.
Other Features
Building Total & Improvement Details

Grade C 100%
Percentage Complete 100
Total Adjusted Replacement Cost New $339,902
Physical Depreciation (% Bad) 0%
Depreciated Value $186,946
Economic Depreciation (% Bad) 0%
Functional Depreciation (% Bad) 0%
Total Depreciated Value $186,946
Market Area Factor 1.00
Building Value $186,946
Misc Improvements Value
Total Improvement Value $186,946

Assessed Land Value $101,500
   
Assessed Total Value $288,446



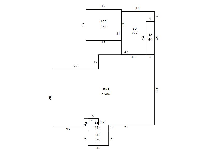
Addition Summary 
StoryTypeCodeArea
1.00 Frame Deck 16 70
1.00 Concrete Slab 16B 255
1.00 Covered Porch 18 45
1.00 Carport 30 272
1.00 Storage Utility 32 64
1.00 Unfinished Basement 10 1506
 
Other Improvements 
 


Building Sketch
Photograph
Building Sketch Building Photo
(Click sketch for bigger image)




Copyright © 2022 Durham County, North Carolina.