Building Summary

Data last updated on: 4/2/2026     Ownership current as of: 3/30/2026     Tax Year: 2026
REID 116166

PIN # 0820-87-2256

Location Address Property Description
2611 ATLANTIC ST ELLIS PLC/LT#013 PT NKA P ROP-CALBAR INV CO/LT#01 PL:000048-000200
   
Property Owner Owner's Mailing Address
HARRISON, DEBURLINE JANELLE
2611 ATLANTIC ST
DURHAM NC 27707

Value subject to change, property assessment under review

Parcel
Buildings
Misc Improvements
Land
Deeds
Notes
Sales
Photos
Map
Building Location Address
2611 ATLANTIC ST
Building Description
RESFR-RES-FRM-OR-EQ
Card   of  1
Bldg Type RESIDENTIAL
Units 1
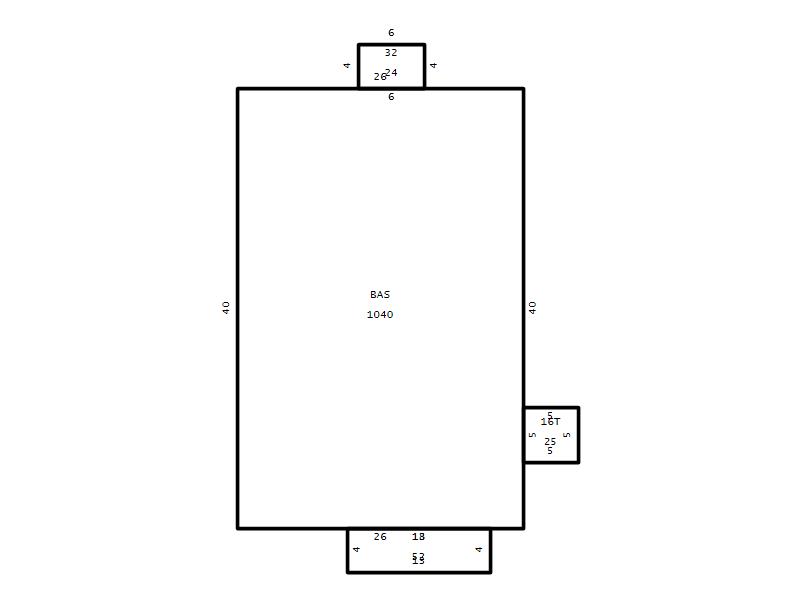
Living Area (SQFT) 1040
Number of Stories 1.00
Style RAN-RANCH
Foundation 04-P-FOOTING/CRWL-SP
Exterior 09-HARD-B/CEMENTBRD
Const Type
Heating 06-HEAT-PUMP
Air Cond
Plumbing Baths (Full):   1
Baths (Half):   0
Extra Fixtures:   0
Total Plumbing Fixtures:   3 
Bedrooms 3
Main Body (SQFT) 1040
Year Built 1958
Additions 3
Effective Year 1958
Remodeled 0
Interior Adj.
Other Features
Building Total & Improvement Details

Grade D+ 85%
Percentage Complete 100
Total Adjusted Replacement Cost New
Physical Depreciation (% Bad) 0%
Depreciated Value
Economic Depreciation (% Bad) 0%
Functional Depreciation (% Bad) 0%
Total Depreciated Value
Market Area Factor 1.00
Building Value
Misc Improvements Value
Total Improvement Value

Assessed Land Value
   
Assessed Total Value



Addition Summary 
StoryTypeCodeArea
1.00 Terrace/Raised Patio 16T 25
1.00 Covered Porch 18 52
1.00 Storage Utility 32 24
 
Other Improvements 
 


Building Sketch
Photograph
Building Sketch Building Photo
(Click sketch for bigger image)




Copyright © 2022 Durham County, North Carolina.