Building Summary

Data last updated on: 4/2/2026     Ownership current as of: 3/30/2026     Tax Year: 2026
REID 116364

PIN # 0820-76-9265

Location Address Property Description
2805 FAYETTEVILLE ST PROP-FERRELL O K/MAP:1/LT #06B-07 PL:000012-000067
   
Property Owner Owner's Mailing Address
LAWSON, SANDRA JEAN;HURREY, SUSAN A
2805 FAYETTEVILLE ST
DURHAM NC 27707
Parcel
Buildings
Misc Improvements
Land
Deeds
Notes
Sales
Photos
Map
Building Location Address
2805 FAYETTEVILLE ST
Building Description
RESFR-RES-FRM-OR-EQ
Card   of  1
Bldg Type RESIDENTIAL
Units 1
Living Area (SQFT) 1876
Number of Stories 2.00
Style CON-CONVENTIONAL
Foundation 04-P-FOOTING/CRWL-SP
Exterior 08-VINYL/ALUMINUM
Const Type
Heating 03-FORCED-HOT-AIR
Air Cond
Plumbing Baths (Full):   2
Baths (Half):   1
Extra Fixtures:   0
Total Plumbing Fixtures:   8 
Bedrooms 3
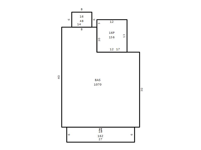
Main Body (SQFT) 1070
Year Built 1942
Additions 4
Effective Year 1942
Remodeled 0
Interior Adj.
Other Features
Building Total & Improvement Details

Grade B+ 135%
Percentage Complete 100
Total Adjusted Replacement Cost New $419,253
Physical Depreciation (% Bad) 0%
Depreciated Value $356,365
Economic Depreciation (% Bad) 0%
Functional Depreciation (% Bad) 0%
Total Depreciated Value $356,365
Market Area Factor 1.00
Building Value $356,365
Misc Improvements Value
Total Improvement Value $356,365

Assessed Land Value $100,625
   
Assessed Total Value $456,990



Addition Summary 
StoryTypeCodeArea
1.00 Frame Deck 16 48
1.00 Patio 16P 156
1.00 Covered Porch 18 162
1.00 Res Frame 2Nd Flr FR02 806
 
Other Improvements 
 


Building Sketch
Photograph
Building Sketch Building Photo
(Click sketch for bigger image)




Copyright © 2022 Durham County, North Carolina.