Building Summary

Data last updated on: 4/2/2026     Ownership current as of: 3/30/2026     Tax Year: 2026
REID 117200

PIN # 0821-80-2534

Location Address Property Description
201 BELL ST MERRICKVILLE/LOT#136/LOT# 01 PL:000004-000193
   
Property Owner Owner's Mailing Address
HOME SFR BORROWER LLC
3505 KOGER BLVD STE 400
DULUTH GA 30096
Parcel
Buildings
Misc Improvements
Land
Deeds
Notes
Sales
Photos
Map
Building Location Address
201 BELL ST
Building Description
RESFR-RES-FRM-OR-EQ
Card   of  1
Bldg Type RESIDENTIAL
Units 1
Living Area (SQFT) 1496
Number of Stories 2.00
Style CON-CONVENTIONAL
Foundation 04-P-FOOTING/CRWL-SP
Exterior 08-VINYL/ALUMINUM
Const Type
Heating 05-PACKAGE-HEAT/COOL
Air Cond
Plumbing Baths (Full):   2
Baths (Half):   1
Extra Fixtures:   0
Total Plumbing Fixtures:   8 
Bedrooms 4
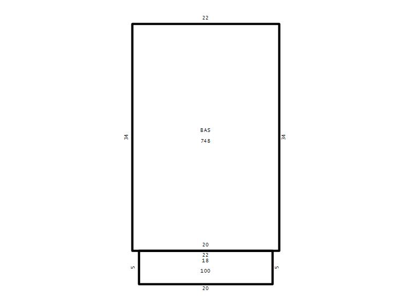
Main Body (SQFT) 748
Year Built 2007
Additions 2
Effective Year 2007
Remodeled 0
Interior Adj.
Other Features
Building Total & Improvement Details

Grade C+ 110%
Percentage Complete 100
Total Adjusted Replacement Cost New $286,484
Physical Depreciation (% Bad) 0%
Depreciated Value $234,917
Economic Depreciation (% Bad) 0%
Functional Depreciation (% Bad) 0%
Total Depreciated Value $234,917
Market Area Factor 1.00
Building Value $234,917
Misc Improvements Value
Total Improvement Value $234,917

Assessed Land Value $136,250
   
Assessed Total Value $371,167



Addition Summary 
StoryTypeCodeArea
1.00 Covered Porch 18 100
1.00 Res Frame 2Nd Flr FR02 748
 
Other Improvements 
 


Building Sketch
Photograph
Building Sketch Building Photo
(Click sketch for bigger image)




Copyright © 2022 Durham County, North Carolina.