Building Summary

Data last updated on: 4/2/2026     Ownership current as of: 3/30/2026     Tax Year: 2026
REID 117416

PIN # 0821-90-1765

Location Address Property Description
415 DUPREE ST PROP-WADE WILLIAM/LT#11 PL:000013-000185
   
Property Owner Owner's Mailing Address
NORRIS, JANEL MARIE;NORRIS, AMANDA MIZELLE
415 DUPREE ST
DURHAM NC 27707
Parcel
Buildings
Misc Improvements
Land
Deeds
Notes
Sales
Photos
Map
Building Location Address
415 DUPREE ST
Building Description
RESFR-RES-FRM-OR-EQ
Card   of  1
Bldg Type RESIDENTIAL
Units 1
Living Area (SQFT) 1526
Number of Stories 2.00
Style CON-CONVENTIONAL
Foundation 04-P-FOOTING/CRWL-SP
Exterior 09-HARD-B/CEMENTBRD
Const Type
Heating 05-PACKAGE-HEAT/COOL
Air Cond
Plumbing Baths (Full):   2
Baths (Half):   1
Extra Fixtures:   0
Total Plumbing Fixtures:   8 
Bedrooms 3
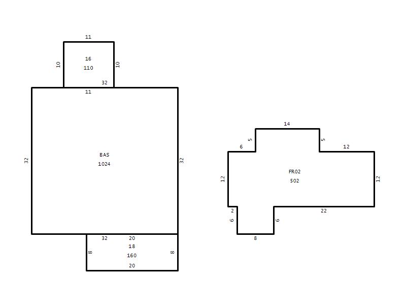
Main Body (SQFT) 1024
Year Built 2019
Additions 3
Effective Year 2019
Remodeled 0
Interior Adj.
Other Features
Building Total & Improvement Details

Grade B-5 115%
Percentage Complete 100
Total Adjusted Replacement Cost New $317,546
Physical Depreciation (% Bad) 0%
Depreciated Value $314,371
Economic Depreciation (% Bad) 0%
Functional Depreciation (% Bad) 0%
Total Depreciated Value $314,371
Market Area Factor 1.00
Building Value $314,371
Misc Improvements Value
Total Improvement Value $314,371

Assessed Land Value $142,500
   
Assessed Total Value $456,871



Addition Summary 
StoryTypeCodeArea
1.00 Res Frame 2Nd Flr FR02 502
1.00 Frame Deck 16 110
1.00 Covered Porch 18 160
 
Other Improvements 
 


Building Sketch
Photograph
Building Sketch Building Photo
(Click sketch for bigger image)




Copyright © 2022 Durham County, North Carolina.