Building Summary

Data last updated on: 4/2/2026     Ownership current as of: 3/30/2026     Tax Year: 2026
REID 117436

PIN # 0821-90-3953

Location Address Property Description
1614 FAYETTEVILLE ST PROP-DUNSTON MINCEY ROBERSON/BLK:H/LT#02 PL:00005A-000046
   
Property Owner Owner's Mailing Address
SS DURHAM LLC
2213 FITZGERALD AVE UNIT B
DURHAM NC 27707
Parcel
Buildings
Misc Improvements
Land
Deeds
Notes
Sales
Photos
Map
Building Location Address
1614 FAYETTEVILLE ST
Card   of  1        Section   of  1
Building Details

Building Name APARTMENT GARDEN WOOD FR
Primary Occupancy Type COMMERCIAL
Primary Occupancy 01W-APTT-GARDEN-W-FR
Primary Class H1W
Primary Quality C+5
Year Built 1959
Effective Year 1959
Physical Depreciation (Rating) CGW-CDU PERCENTAGE
Physical Depreciation (% Bad) 43.00%
Economic Depreciation (% Bad) 0%
Functional Depreciation (% Bad) 0%
Gross Leasable Area (SQFT) 3012
Remodeled Year
Total Stories

Section Details

Occupancy Type COMMERCIAL


Class H1W
Depreciation 43%
Depreciation CGW-CDU PERCENTAGE
Heat 15-HEAT-&-AC-COM
Occupancy 01W-APTT-GARDEN-W-FR
Quality C+5
Exterior Walls N/A-EXT-WALL
Building Total & Improvement Details

Total Adjusted Replacement Cost New $579,100
Physical Depreciation (% Bad) 43.00%
Depreciated Value $330,087
Economic Depreciation (% Bad) 0%
Functional Depreciation (% Bad) 0%
Total Depreciated Value $330,087
Market Area Factor 1.00
Building Value $330,087
Misc Improvements Value
Total Improvement Value $330,087

Assessed Land Value $151,250
   
Assessed Total Value $481,337


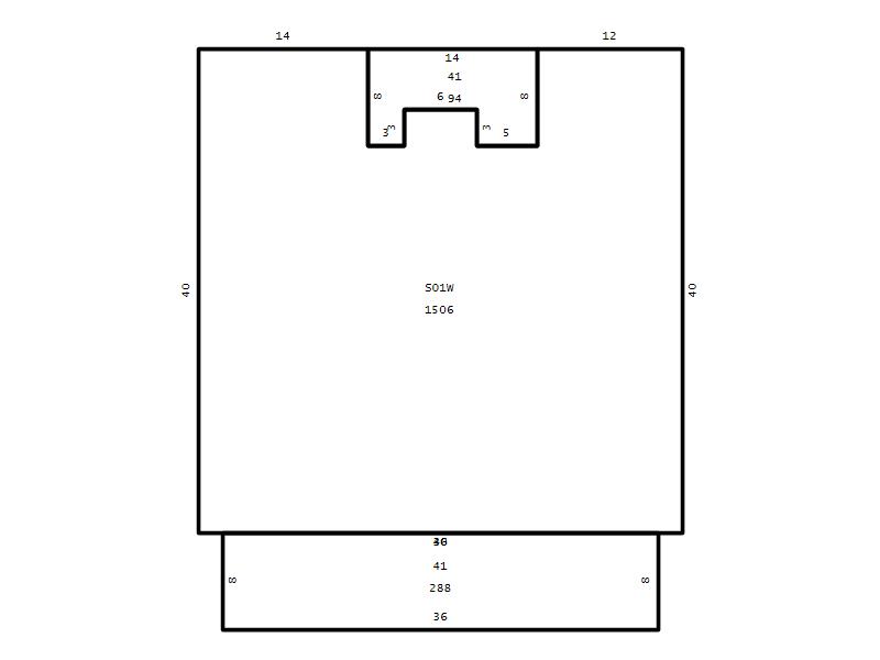
Addition Summary 
StoryTypeCodeArea
1.00 Canopy Commercial 41 288
2.00 Canopy Commercial 41 94
 
Other Improvements 
 


Building Sketch
Photograph
Building Sketch Building Photo
(Click sketch for bigger image)




Copyright © 2022 Durham County, North Carolina.