Building Summary

Data last updated on: 10/6/2025     Ownership current as of: 9/18/2025     Tax Year: 2025
REID 117542

PIN # 0831-20-1119

Location Address Property Description
1209 ROSEWOOD ST WOODSTOCK/BLK:A/LT#UNNUMB ERED PL:000024-000023
   
Property Owner Owner's Mailing Address
HANNA, HASSAN;JAWAD, MARK
1209 ROSEWOOD ST
DURHAM NC 27701
Parcel
Buildings
Misc Improvements
Land
Deeds
Notes
Sales
Photos
Map
Building Location Address
1209 ROSEWOOD ST
Building Description
RESFR-RES-FRM-OR-EQ
Card   of  1
Bldg Type RESIDENTIAL
Units 1
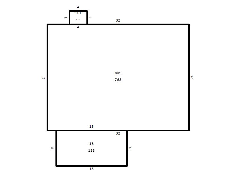
Living Area (SQFT) 768
Number of Stories 1.00
Style RAN-RANCH
Foundation 04-P-FOOTING/CRWL-SP
Exterior 08-VINYL/ALUMINUM
Const Type
Heating 05-PACKAGE-HEAT/COOL
Air Cond
Plumbing Baths (Full):   1
Baths (Half):   0
Extra Fixtures:   0
Total Plumbing Fixtures:   3 
Bedrooms 2
Main Body (SQFT) 768
Year Built 1953
Additions 2
Effective Year 1953
Remodeled 0
Interior Adj.
Other Features
Building Total & Improvement Details

Grade C 100%
Percentage Complete 100
Total Adjusted Replacement Cost New $169,817
Physical Depreciation (% Bad) 0%
Depreciated Value $110,381
Economic Depreciation (% Bad) 0%
Functional Depreciation (% Bad) 0%
Total Depreciated Value $110,381
Market Area Factor 1.00
Building Value $110,381
Misc Improvements Value
Total Improvement Value $110,381

Assessed Land Value $125,775
   
Assessed Total Value $236,156



Addition Summary 
StoryTypeCodeArea
1.00 Terrace/Raised Patio 16T 12
1.00 Covered Porch 18 128
 
Other Improvements 
 


Building Sketch
Photograph
Building Sketch Building Photo
(Click sketch for bigger image)




Copyright © 2022 Durham County, North Carolina.