Building Summary

Data last updated on: 10/6/2025     Ownership current as of: 9/18/2025     Tax Year: 2025
REID 117550

PIN # 0830-29-1843

Location Address Property Description
1228 LAKELAND ST PROP-GEORGE U M/BLK:B/LT# 08 PL:000035-000067
   
Property Owner Owner's Mailing Address
DENNISON, SIMONA;BOWEN, REINA
1228 LAKELAND ST
DURHAM NC 27701
Parcel
Buildings
Misc Improvements
Land
Deeds
Notes
Sales
Photos
Map
Building Location Address
1228 LAKELAND ST
Building Description
RESMS-RES-MS-OR-EQ
Card   of  1
Bldg Type RESIDENTIAL
Units 1
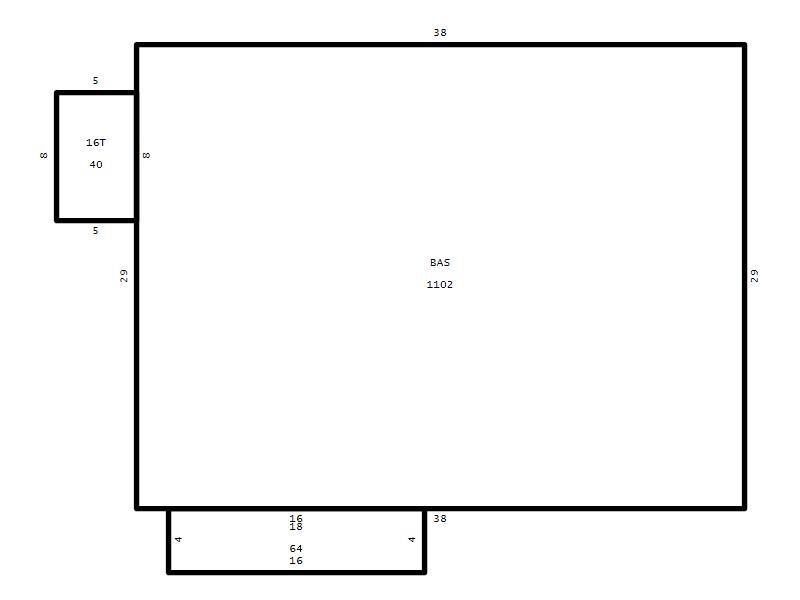
Living Area (SQFT) 1102
Number of Stories 1.00
Style RAN-RANCH
Foundation 04-P-FOOTING/CRWL-SP
Exterior 02-BRICK
Const Type
Heating 03-FORCED-HOT-AIR
Air Cond
Plumbing Baths (Full):   1
Baths (Half):   1
Extra Fixtures:   0
Total Plumbing Fixtures:   5 
Bedrooms 3
Main Body (SQFT) 1102
Year Built 1964
Additions 2
Effective Year 1964
Remodeled 0
Interior Adj.
Other Features
Building Total & Improvement Details

Grade C-10 90%
Percentage Complete 100
Total Adjusted Replacement Cost New $192,259
Physical Depreciation (% Bad) 0%
Depreciated Value $130,736
Economic Depreciation (% Bad) 0%
Functional Depreciation (% Bad) 0%
Total Depreciated Value $130,736
Market Area Factor 1.00
Building Value $130,736
Misc Improvements Value
Total Improvement Value $130,736

Assessed Land Value $125,775
   
Assessed Total Value $256,511



Addition Summary 
StoryTypeCodeArea
1.00 Terrace/Raised Patio 16T 40
1.00 Covered Porch 18 64
 
Other Improvements 
UnitsDescriptionItemCodeYear% BadValue
10x13 DIMENSIONS Shed Personal Property 1970 75
 


Building Sketch
Photograph
Building Sketch Building Photo
(Click sketch for bigger image)




Copyright © 2022 Durham County, North Carolina.