Building Summary

Data last updated on: 4/2/2026     Ownership current as of: 3/30/2026     Tax Year: 2026
REID 117564

PIN # 0831-10-2448

Location Address Property Description
901 DUPREE ST LINWOOD HEIGHTS/LT#07 PL:00018A-000184
   
Property Owner Owner's Mailing Address
HILL, ABREA
56 PRIMROSE CIRLCE
PRINCETON NJ 08540
Parcel
Buildings
Misc Improvements
Land
Deeds
Notes
Sales
Photos
Map
Building Location Address
901 DUPREE ST
Building Description
RESFR-RES-FRM-OR-EQ
Card   of  1
Bldg Type RESIDENTIAL
Units 1
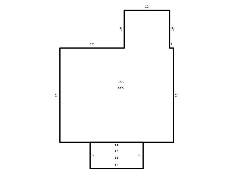
Living Area (SQFT) 870
Number of Stories 1.00
Style RAN-RANCH
Foundation 04-P-FOOTING/CRWL-SP
Exterior 01-WOOD-PANEL
Const Type
Heating 03-FORCED-HOT-AIR
Air Cond
Plumbing Baths (Full):   1
Baths (Half):   0
Extra Fixtures:   0
Total Plumbing Fixtures:   3 
Bedrooms 2
Main Body (SQFT) 870
Year Built 1949
Additions 1
Effective Year 1949
Remodeled 0
Interior Adj.
Other Features
Building Total & Improvement Details

Grade C 100%
Percentage Complete 100
Total Adjusted Replacement Cost New $180,163
Physical Depreciation (% Bad) 0%
Depreciated Value $99,090
Economic Depreciation (% Bad) 0%
Functional Depreciation (% Bad) 0%
Total Depreciated Value $99,090
Market Area Factor 1.00
Building Value $99,090
Misc Improvements Value
Total Improvement Value $99,090

Assessed Land Value $98,875
   
Assessed Total Value $197,965



Addition Summary 
StoryTypeCodeArea
1.00 Covered Porch 18 98
 
Other Improvements 
 


Building Sketch
Photograph
Building Sketch Building Photo
(Click sketch for bigger image)




Copyright © 2022 Durham County, North Carolina.